WORKS
施工事例
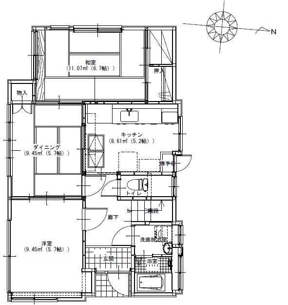
東京都大田区O様邸
【お客様の声】
●リフォームのきっかけ
ご主人様の伯父様が引っ越しをされることになり、空き家になるとのことで、ご夫婦の新居としてリフォームを検討されました。
●リフォームのこだわり
お風呂に入っている時間が好きなのでお風呂を大きくしたい、これからお子様ができた時に安全で使いやすいようにレイアウトを工夫したいと、古いのでとにかく床冷えがして寒いので、断熱をしっかりしたいとのご要望でした。
【担当者のコメント】
ご夫婦ともに、ご自身では“ずぼら”という性格と話していたので、とにかく動線をコンパクトにしました。また、いずれお子様が欲しいという事を仰っていたので、小さなお子様に目が届き、安全に・快適に生活できるように心がけました。
担当店:リフォームプライス世田谷店
タイプ
軽量鉄骨
家族構成
ご夫婦+猫
築年数
45年
施工金額
637万円
工期
1か月半
リフォーム面積
55㎡
リフォーム箇所
トイレ、洗面、キッチン、浴室
WORKS同じタグの付いている事例

収納を充実させたい
リフォームで食事が楽しくなる
家族構成の変化
家族の会話が増える
間取り変更あり(間取り図掲載)

収納を充実させたい
デザインリフォーム
子育てしやすい家
在宅ワークしやすい家
コレクションを大切にする
間取り変更あり(間取り図掲載)

中古を買ってリフォーム
収納を充実させたい
ペットと快適に過ごす
夫婦でゆったりくつろぐ空間
コレクションを大切にする
結婚を機に
間取り変更あり(間取り図掲載)

中古を買ってリフォーム
デザインリフォーム
リフォームで食事が楽しくなる
在宅ワークしやすい家
趣味の空間
間取り変更あり(間取り図掲載)

収納を充実させたい
子育てしやすい家
リフォームで食事が楽しくなる
実家への住替え
趣味の空間
コレクションを大切にする
家族の会話が増える
間取り変更あり(間取り図掲載)

収納を充実させたい
デザインリフォーム
子育てしやすい家
リフォームで食事が楽しくなる
実家への住替え
自然素材に囲まれる
出産を機に
夫婦でゆったりくつろぐ空間
在宅ワークしやすい家
家族の会話が増える
間取り変更あり(間取り図掲載)