WORKS
施工事例
東京都稲城市Y様
■リフォームしたきっかけ
家族構成やライフスタイルの変化に伴い、見晴らしの良い中古物件を購入して将来を見据えたお住まいにするためのリノベーション。
■お客様のご要望と解決方法
①ライフスタイルの変化や環境変化でも対応可能で安心・安全に暮らせるような空間に
家全体をなるべく段差を無くしたバリアフリーの設計を基本に
ドアは引き戸を基本に使いやすさに配慮(トイレなどは折れ戸)
立上りや着座の動作部分いは手摺りの設置(玄関、トイレ、お風呂など)
消し忘れがないように人感センサー付き照明を選定(トイレ、洗面、玄関等)
②解放感やつながり感のある広々とした空間にしたい
広々としたLDKや玄関にするために、白を基調としたフローリングの仕様
玄関に設置した全身鏡を設置することで空間に奥行き感を演出
玄関に設置した全身鏡
なるべく廊下を少なくすることで、居室部分にゆとりが生まれるように
③適材適所にたくさんの収納を設けて、安全の確保(家具転倒防止)、生活感を無くして家事を楽に少なめに
玄関収納:旅行カバン、ゴルフバックなど大物収納
パントリー:食材や飲料水、モデムやプリンターなど
WIC:全部ハンガーで洗濯物は畳まないように
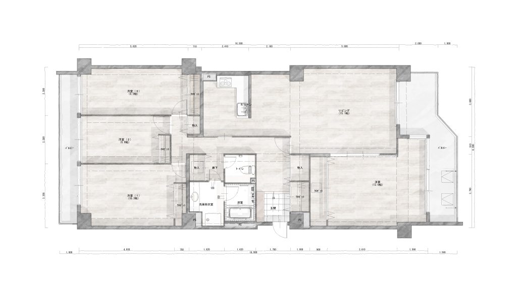
▽Before図
収納の数はあるものの、しまいたいものや使い勝手を考慮し、再設計しました

▽After図

④家事はなるべく簡単に、楽しく、楽にしたい
玄関やキッチンは夫婦2人で作業が出来るようなゆとりのある空間に
段差がないのでロボット掃除機のお掃除導線にも配慮
⑤子供や来客者が来た際には、間仕切り扉を用いて臨機応変な生活が出来るように
▽閉めることで簡易的に2部屋に分けることが可能なLDK

■コメント
お施主様のご要望を叶えるために、一つ一つの使い勝手や空間のイメージを共有した空間づくりを進めていきました。『安全安心なお住まいに』が一つのテーマで、安全面からは極力段差の生じないようなフラットな設計にすることで将来のへの配慮を、安心という観点からは、お家の見えないところ(断熱性能の向上や給排水管の更新等)も細かく打ち合わせて計画した上で、デザインも細部にこだわりを持たせたリノベーションとなっております。
デザインの観点からは、シンプルモダンなイメージにされたいということで、フローリングは白の石目調、間仕切りドア以外の建具は白系を基調にコーディネートしております。また、間仕切引戸には、黒いフレームを用いることで空間を締め、メリハリのある空間づくりを目指しました。
さらに、白を基調にした空間構成とすることで、玄関の壁面やキッチンの腰壁等に用いたタイル、ピクチャーレールに飾られる絵が、おうちのアクセントに効いて、暮らしに彩りを与えているのが印象的なリノベーションとなりました。
-この事例がピックアップされているコラム一覧-
タイプ
RC造
家族構成
ご夫婦
築年数
34年
施工金額
非公開
工期
3か月
リフォーム面積
非公開
使用した商品
キッチン:Panasonic「ラクシーナ」
浴室:LIXIL「スパージュ」
洗面化粧台:Panasonic「シーライン」
床材:Panasonic「ウッディアーキA」
玄関床タイル:LIXIL「IPF-300」
リフォーム箇所
トイレ、洗面、キッチン、リビング、浴室、ダイニング、寝室、廊下
WORKS同じタグの付いている事例

リフォームで食事が楽しくなる
コレクションを大切にする

二世帯住宅
リフォームで食事が楽しくなる
コンテスト受賞事例
アウトドアリビング
コレクションを大切にする
家族の会話が増える
間取り変更あり(間取り図掲載)

中古を買ってリフォーム
収納を充実させたい
デザインリフォーム
子育てしやすい家
リフォームで食事が楽しくなる
家族構成の変化
自然素材に囲まれる
出産を機に
夫婦でゆったりくつろぐ空間
入園、入学を機に
家族の会話が増える
間取り変更あり(間取り図掲載)

中古を買ってリフォーム
自然素材に囲まれる
夫婦でゆったりくつろぐ空間
在宅ワークしやすい家
コレクションを大切にする
家族の会話が増える

収納を充実させたい
デザインリフォーム
リフォームで食事が楽しくなる
ペットと快適に過ごす
夫婦でゆったりくつろぐ空間
在宅ワークしやすい家
家族の会話が増える
間取り変更あり(間取り図掲載)

収納を充実させたい
子育てしやすい家
リフォームで食事が楽しくなる
入園、入学を機に
家族の会話が増える