WORKS
施工事例
東京都多摩市S様邸
【お客様の声】
間取りやライフスタイル、照明計画など、たくさんのご意見やアドバイスを頂きながら楽しく打合せができました。明るく好きなものに囲まれたリビングで家族とのんびり過ごすことが至福の時となっています。
【担当者のコメント】
単身赴任をしていたご主人様が帰ってくることをきっかけに、ライフスタイルを見直されたお施主様。新築へ引越しか、住み慣れた家のリフォームかお悩みでした。せっかくリフォームするなら分譲の新築では叶えられないこだわりの空間や、以前から奥様がお好きだった北欧インテリアの合う空間にしたい、というご要望でした。
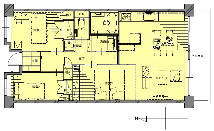
プランに際しては、各室の「空間のつながり」をポイントとしました。天井高に合わせた建具やブラインドを開ければ、空間が全てつながり、風や光、家族の存在を各部屋に届けます。南側に配置したLDKは、白基調の内装とサッシ2つ分の開口から光が差し込み、広々とした明るい空間になりました。思い切って4mにしたキッチンは、LDの収納の役割を担いつつアクセントや家具と調和し空間のポイントとなりました。
担当店:リフォームプライス多摩店
タイプ
RC構造
家族構成
ご夫婦 お嬢様2人
築年数
20年
施工金額
900万円
工期
3か月
リフォーム面積
70㎡
リフォーム箇所
浴室、キッチン
WORKS同じタグの付いている事例

中古を買ってリフォーム
夫婦でゆったりくつろぐ空間
家族の会話が増える
間取り変更あり(間取り図掲載)

中古を買ってリフォーム
収納を充実させたい
デザインリフォーム
子育てしやすい家
リフォームで食事が楽しくなる
家族構成の変化
自然素材に囲まれる
出産を機に
夫婦でゆったりくつろぐ空間
入園、入学を機に
家族の会話が増える
間取り変更あり(間取り図掲載)

デザインリフォーム
子育てしやすい家
家族の会話が増える

中古を買ってリフォーム
デザインリフォーム
一人を愉しむ空間
夫婦でゆったりくつろぐ空間
在宅ワークしやすい家
趣味の空間
家族の適度な距離感を創る
間取り変更あり(間取り図掲載)

家族構成の変化
ペットと快適に過ごす
一人を愉しむ空間
自然素材に囲まれる
趣味の空間
間取り変更あり(間取り図掲載)

デザインリフォーム
夫婦でゆったりくつろぐ空間
趣味の空間
家族の会話が増える