WORKS
施工事例
戸田市K様
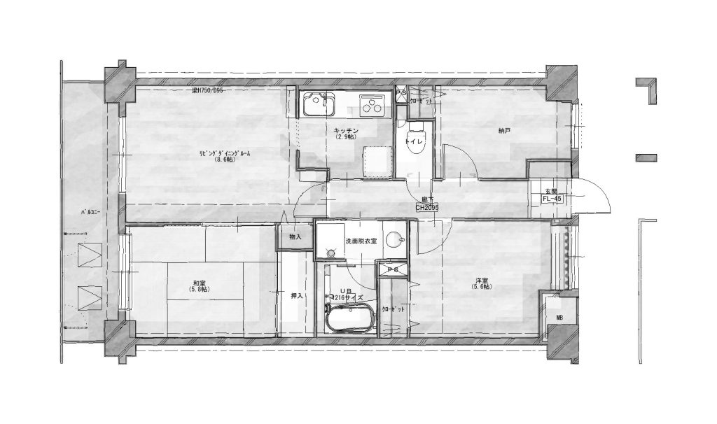
Before

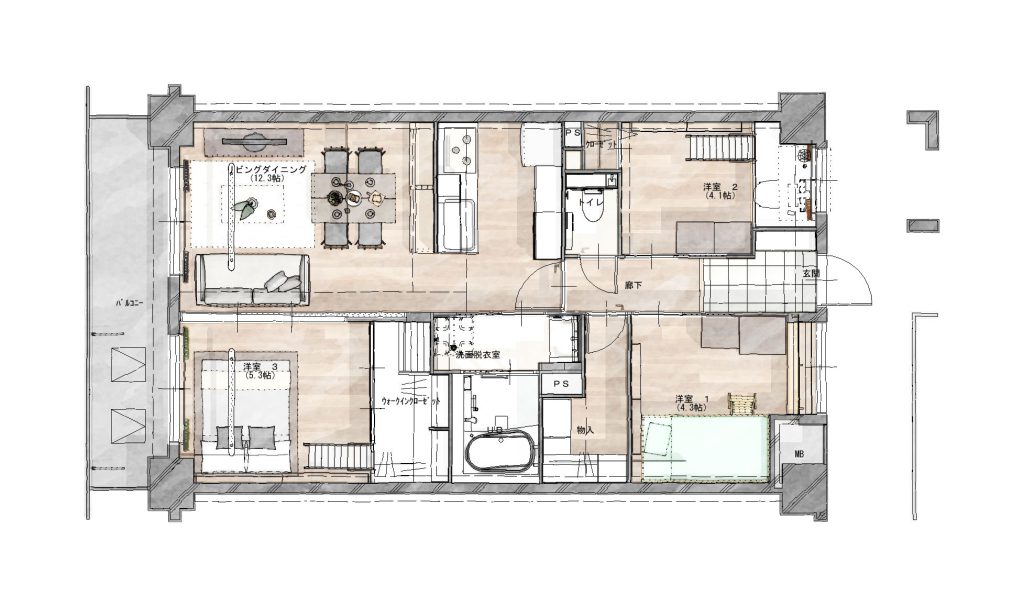
After

■リフォームしたきっかけ
設備や内装など、全体的な経年劣化もありリフォームを検討し始めました。
■お客様のご要望
・収納が少ないため、増やしたい
・子供の空間を確保してあげたい
・趣味の裁縫も楽しめるような空間が欲しい
■担当者コメント
クロスもカラフルにしていただき、まるで秘密基地のような楽しい空間を実現できてよかったです。工夫して設けたロフトも、お子様の成長に合わせて使い方が変わっていくのも楽しみですね。
担当店舗:リフォームプライス上尾店
タイプ
RC造
家族構成
ご夫婦+お嬢様2人
築年数
27年
施工金額
870万円
工期
2か月
リフォーム面積
62㎡
使用した商品
キッチン:LIXIL「シエラS」
トイレ:LIXIL「リフォレ」
洗面台:LIXIL「L.C.」
床材:Panasonic「ベリティスフロア アイボリーアッシュ」
リフォーム箇所
トイレ、洗面、リビング、ダイニング、寝室、廊下、キッチン、浴室
施工事例No.3220000304
WORKS同じタグの付いている事例

中古を買ってリフォーム
収納を充実させたい
リフォームで食事が楽しくなる
ペットと快適に過ごす
夫婦でゆったりくつろぐ空間
家族の会話が増える
間取り変更あり(間取り図掲載)

収納を充実させたい
デザインリフォーム
リフォームで食事が楽しくなる
ペットと快適に過ごす
夫婦でゆったりくつろぐ空間
趣味の空間
コレクションを大切にする
家族の会話が増える
家族の適度な距離感を創る
間取り変更あり(間取り図掲載)

デザインリフォーム
家族構成の変化
一人を愉しむ空間
趣味の空間
間取り変更あり(間取り図掲載)

二世帯住宅
収納を充実させたい
デザインリフォーム
子育てしやすい家
リフォームで食事が楽しくなる
家族構成の変化
実家への住替え
コンテスト受賞事例
趣味の空間
家族の会話が増える
家族の適度な距離感を創る
間取り変更あり(間取り図掲載)

子育てしやすい家
リフォームで食事が楽しくなる
実家への住替え
在宅ワークしやすい家
家族の会話が増える
間取り変更あり(間取り図掲載)

収納を充実させたい
間取り変更あり(間取り図掲載)