WORKS
施工事例
神奈川県横浜市K様邸
●リフォームのきっかけ
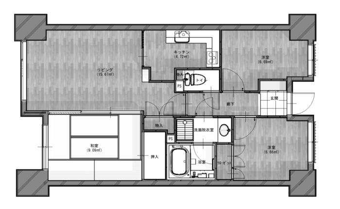
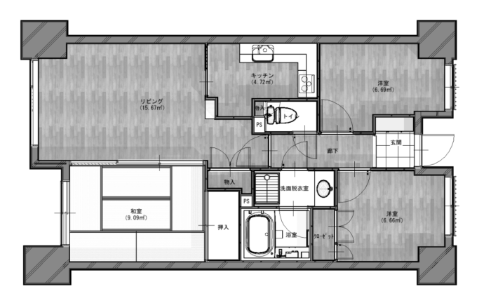
マンションを購入されて約30年。「相当ガタがきているので、少なくとも水廻りは交換しなきゃ」とリフォームを決意。ご実家から来た大きなお仏壇を置くスペースや、お孫さんが生まれるので、遊びに来るスペースの確保にもお悩みでした。
●ご要望
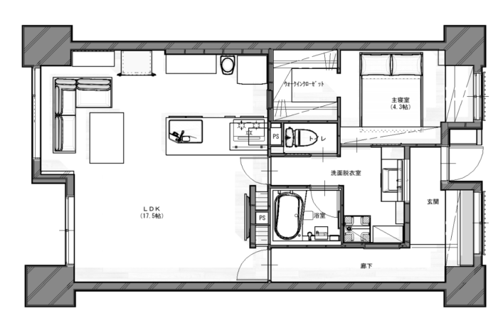
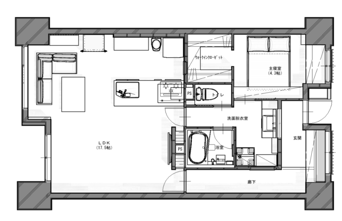
リフォームのきっかけであった水廻りを新しくするほかに、お仏壇置き場や広いLDKの確保といった、悩みを解決するご要望が最初にありました。お話を聞いていくうちに、「絵を飾りたい、洗面所に太陽光が入るようにしたい、風を通したい」、といった、よりお家での暮らしを豊かに、快適に過ごすための、どんなお家にしたいかのご希望を教えていただき、間取り自体も大きく変える提案をさせていただきました。
●お客様のご感想
お部屋にゆっくりとした風が通るようになったのがうれしい!お化粧も今まではやりすぎる心配があってしなくなっていたけれど、洗面所に自然光が入るようになったので、安心してお化粧できるようになりました。オススメよりも「どうしたいですか?」とこちらに聞いてくれたのが良かったな。提案も、私たちに合ったものを考えてくれていました。だからすぐに「それいい!」ってなりました。
●スタッフコメント
お仏壇が家具のひとつみたいに納まり、LDKも広々としたので、これでお孫さんがいつ遊びにきても大丈夫ですね!奥様がずっと飾りたかった絵画や息子様たちの写真、結婚20周年の思い出の品など…あえて長く作った玄関廊下に、ギャラリーのように飾ることができて、私も嬉しいです。これからのご夫婦2人だけの時間。より豊かなおうち時間になりますように!!
タイプ
鉄筋コンクリート造
家族構成
ご主人、奥さま
築年数
30年
施工金額
990万円
工期
非公開
リフォーム面積
56㎡
リフォーム箇所
廊下、キッチン、浴室、トイレ、洗面、リビング、ダイニング、寝室
WORKS同じタグの付いている事例

二世帯住宅
家族構成の変化
ペットと快適に過ごす
自然素材に囲まれる
趣味の空間
間取り変更あり(間取り図掲載)

中古を買ってリフォーム
収納を充実させたい
デザインリフォーム
子供の独立を機に
夫婦でゆったりくつろぐ空間
コンテスト受賞事例
家族の会話が増える
家族の適度な距離感を創る

収納を充実させたい
デザインリフォーム
夫婦でゆったりくつろぐ空間
在宅ワークしやすい家
趣味の空間
コレクションを大切にする
家族の適度な距離感を創る
間取り変更あり(間取り図掲載)

収納を充実させたい
子育てしやすい家
趣味の空間
家族の適度な距離感を創る

中古を買ってリフォーム
夫婦でゆったりくつろぐ空間
在宅ワークしやすい家
コンテスト受賞事例
趣味の空間
コレクションを大切にする

収納を充実させたい
デザインリフォーム
子育てしやすい家
リフォームで食事が楽しくなる
実家への住替え
家族の会話が増える
家族の適度な距離感を創る
間取り変更あり(間取り図掲載)