WORKS
施工事例
川口市K様
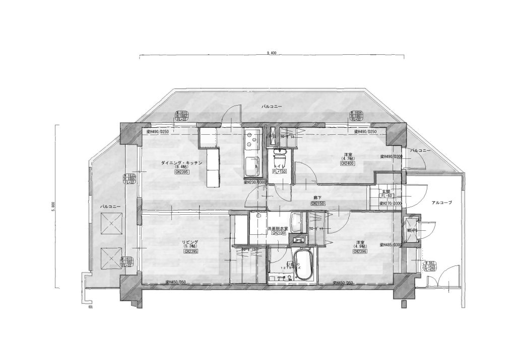
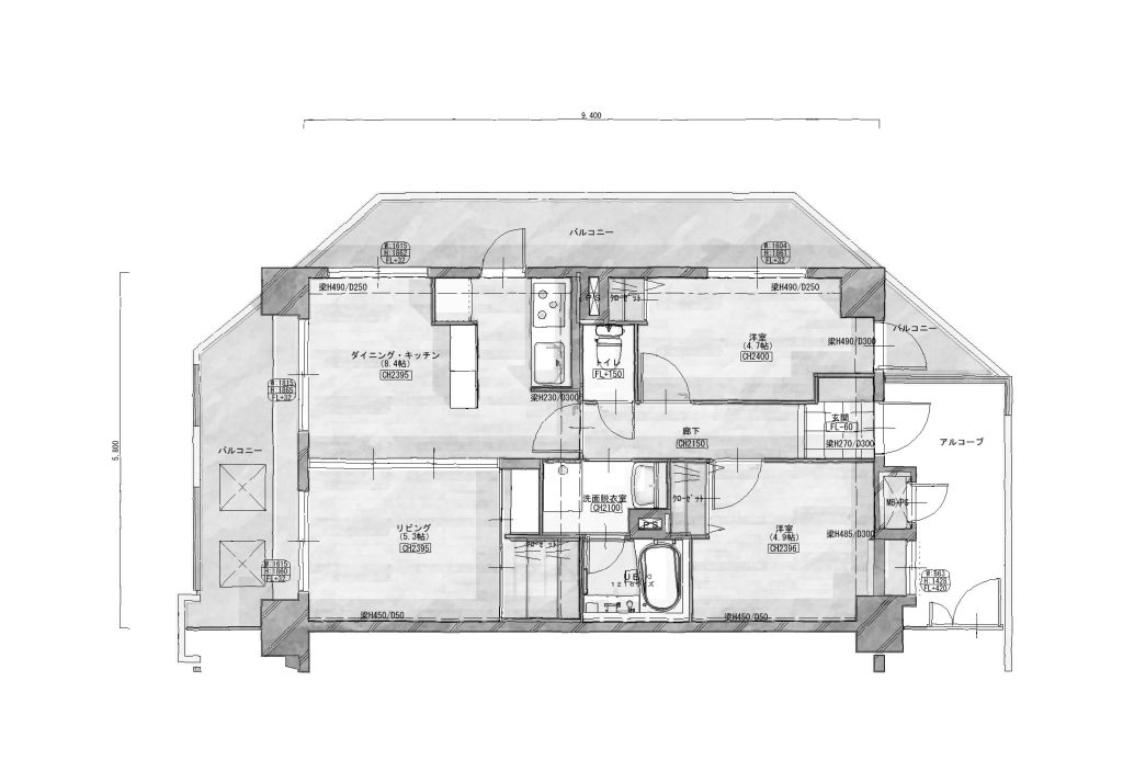
図面
Before

After

■リフォームしたきっかけ
子供が巣立ち、夫婦二人で住みやすい家へするためのリフォームを検討した。
■お客様のご要望
六人掛けのテーブルを置きたい
客間を設けたい
無駄がなくすべてが活用性のある家にしたい
扉をすべて引き戸にしたい
■担当者コメント
お客様とプランを話し合っていく中で、一番重視していたことは、無駄な空間を無くし広々と使えるように、ということでした。
限られた空間の中で、収納とお子様が寝泊まりできる空間を確保しつつさらに水まわりのゆとりを確保していくように工夫をいたしました。キッチンの背面のカップボード収納は掃き出し窓があった場所を内側に壁を作り内窓を入れることで、腰高窓にして大きなカップボード収納を設置いたしました。お仕事部屋の寝室はシンプルで機能的に、LDKはスリット格子や収納にもなる畳が丘、ニッチ収納でダークで和モダンな素敵空間に仕上げました。
■こだわりポイント
隠したロールスクリーン
窓にはカーテンレールを付けずにロールスクリーンやブラインドを採用。特にダイニングの間仕切りスクリーンは両側から見てもロールスクリーン本体が見えないように下がり壁を作って格納しています。

窓を小さくして収納力UP
既存の掃き出しサッシを腰高窓サイズに小さくすることで、大きなカップボードを設けました。限られた空間の有効活用の工夫です。

矢印の窓が小さくなった窓です。
もともと洋室だった洗面室は出窓の形を有効利用
洗面室の位置はガラっと変わり、入り口横の元洋室へ移設しました。出窓部分はハンガーパイプを設けることで、洗濯物をかけることができるように工夫をしています。奥行のある出窓のカウンターは小物を飾ることもできます。

矢印は写真のアングルです。
パイプスペース(PS)の制限をニッチで魅せる
ゲストが泊まれるように作った畳の小上がり空間にはクローゼットを設けました。クローゼットを間口いっぱいに作りたかったけれど、配管スペース(PS)が背面にあるので断念。しかし、ニッチとしてスペースを確保して、アクセントになるように設計しております。

担当店舗:リフォームプライス川口店
-この事例がピックアップされているコラム一覧-
タイプ
RC造
家族構成
ご夫婦+わんちゃん
築年数
28年
施工金額
930万円
工期
2か月
リフォーム面積
55㎡
使用した商品
キッチン:LIXIL「シエラS」
トイレ:Panasonic「アラウーノS160」
洗面台:LIXIL「L.C.」
床材:朝日ウッドテック「ライブナチュラルMSX」ブラックウォルナット
リフォーム箇所
寝室、廊下、キッチン、浴室、トイレ、洗面、リビング、ダイニング
施工事例No.3220000027
WORKS同じタグの付いている事例

中古を買ってリフォーム
収納を充実させたい
家族構成の変化

子育てしやすい家
家族構成の変化
間取り変更あり(間取り図掲載)

中古を買ってリフォーム
収納を充実させたい
デザインリフォーム
子育てしやすい家
リフォームで食事が楽しくなる
家族構成の変化
自然素材に囲まれる
出産を機に
夫婦でゆったりくつろぐ空間
入園、入学を機に
家族の会話が増える
間取り変更あり(間取り図掲載)

リフォームで食事が楽しくなる
実家への住替え
夫婦でゆったりくつろぐ空間
在宅ワークしやすい家
コレクションを大切にする
家族の会話が増える
間取り変更あり(間取り図掲載)

デザインリフォーム
リフォームで食事が楽しくなる
コンテスト受賞事例
趣味の空間
コレクションを大切にする
家族の会話が増える

二世帯住宅
子育てしやすい家
リフォームで食事が楽しくなる
実家への住替え
入園、入学を機に
家族の会話が増える
家族の適度な距離感を創る
鉄骨造の家