WORKS
施工事例
東京都福生市K様
ご主人の定年を機に夫婦でゆっくり過ごせる家にしたかった
・経年劣化が見られる水廻り
・キッチンが閉鎖的
・お風呂が狭く、湯舟で足を伸ばせない
・建具の色などが濃く、全体的に重たい印象なので明るくしたい
八王子店のリフォーム博をきっかけに相談をさせていただきました。SさんとOさんのお二人が聞き取りするときに細かなメモを取り、私たちの希望を丁寧に把握していただき、リフォームの提案内容も希望を叶えていただいた上の、新しい提案をいただき予想以上のデザインをしてくれたことが、この会社に信頼を持った理由です。
他社も相談したのですが、営業的だったり、誠意は感じたのですが、お一人での聞き取りということもあり、希望に対してやや的外れな提案をだったりでしたので、提案をいただいた際には、リフォームプライスさんでお願いすることにしました。
私たち夫婦が2階に住みながらの1階部分の大きなリフォームで、毎日作業の方たちもやりずらかったもしれませんが、工事中は、大工さんや電気屋さん他の職人の方たちも気軽に話していただき、帰り際には、いつもその日の工事の進捗や明日の工事内容をお知らせしてくれたので、安心できました。
また、先ほどの事情のとおり、住みながらということもありましたので、工事中は追加要望や細かな注文が多くなりがちでしたが、工事管理をしていただいたリフォームプライスの施工担当のTさんに一生懸命対応していただいたいたほかにも、作業していただいた方からもアドバイスや進んでお手伝いしていただけたこともあり、工事中も安心して任せられました。とても満足しています。(Google口コミより引用)
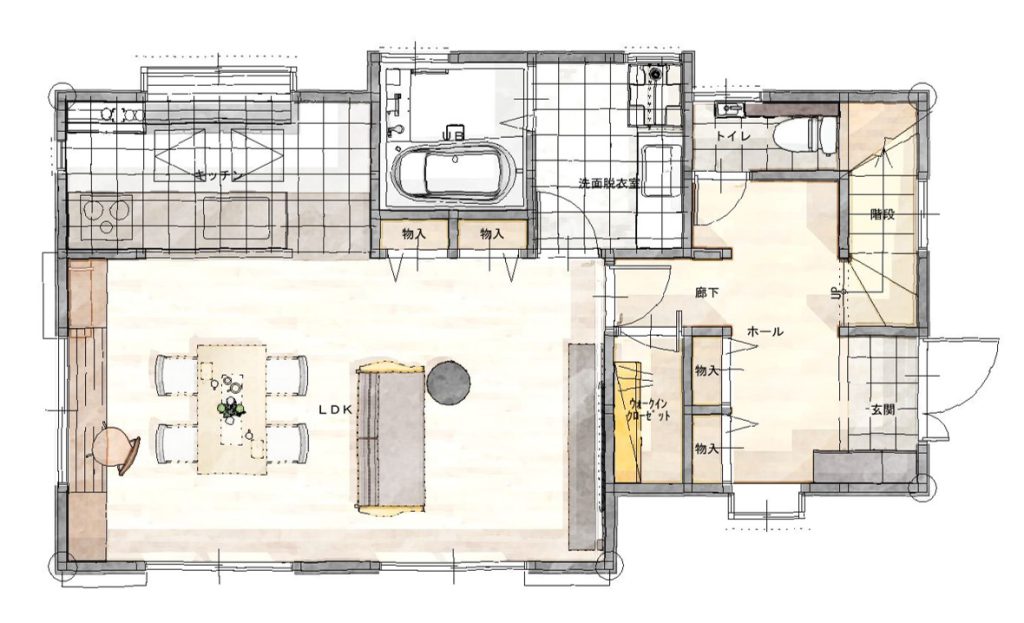
元々のキッチンは対面式ではあったものの、閉鎖的でLDKとの一体感がありませんでした。
柱を抜き、梁で補強をする際にあえて梁部分の天井を下げてアクセントクロスを貼ることで意匠性を高めています。
▽点線が抜いた柱

▽柱を抜いた分の補強梁を入れます

▽梁の部分をあえて一部天井を下げ、アクセントクロスを貼り意匠性を高めました

リフォーム種別
タイプ
在来木造
家族構成
ご夫婦
築年数
25年
施工金額
1100万円
工期
2か月
リフォーム面積
非公開
使用した商品
キッチン:クリナップ「ステディア」
トイレ:LIXIL「アメージュZ」、TOTO「ネオレストDH」
浴室:TOTO「サザナ」
洗面:クリナップ「S」
床材:DAIKEN「マイフロア」
リフォーム箇所
トイレ、洗面、リビング、キッチン、ダイニング、浴室、寝室、廊下、屋根、外壁
WORKS同じタグの付いている事例

二世帯住宅
収納を充実させたい
デザインリフォーム
子育てしやすい家
リフォームで食事が楽しくなる
家族構成の変化
実家への住替え
出産を機に
夫婦でゆったりくつろぐ空間
在宅ワークしやすい家
家族の会話が増える
家族の適度な距離感を創る

収納を充実させたい
デザインリフォーム
リフォームで食事が楽しくなる
ペットと快適に過ごす
夫婦でゆったりくつろぐ空間
趣味の空間
コレクションを大切にする
家族の会話が増える
家族の適度な距離感を創る
間取り変更あり(間取り図掲載)

リフォームで食事が楽しくなる
ペットと快適に過ごす
自然素材に囲まれる
夫婦でゆったりくつろぐ空間
コレクションを大切にする

収納を充実させたい
家族構成の変化
ペットと快適に過ごす
趣味の空間
コレクションを大切にする

デザインリフォーム
夫婦でゆったりくつろぐ空間

二世帯住宅
収納を充実させたい
リフォームで食事が楽しくなる
家族構成の変化
実家への住替え
夫婦でゆったりくつろぐ空間
趣味の空間
コレクションを大切にする
家族の会話が増える
間取り変更あり(間取り図掲載)