WORKS
施工事例
東京都府中市H様
■リフォームしたきっかけ
・お施主様は、賃貸併用の鉄骨造3階建ての3階部分に住んでいましたが、2年前に奥様が事故入院され退院した時に1階~3階の階段の登り降りが大変だった事がきっかけとなり、少し先を見据え賃貸部分の1階へ移り住む決意をされた。
■お客様のご要望
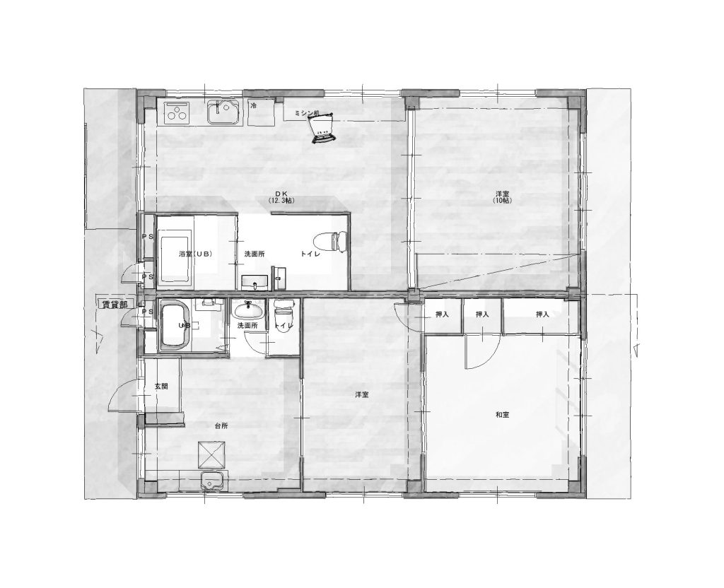
・1階部分は、半分を賃貸貸ししていた為、住居としての間取り変更をしたい
・バリアフリ-化(特に玄関の入り口も車イスの息子さんが入りやすい様になるべく段差をなくしたい)
・暖かい住まいにしたい
・お手持ちの家具を全て配置出来る間取りにしたい(奥様が好きで集めた家具)
・ご夫婦で使う作業カウンタ-スペ-スやミシン作業スペ-スがほしい
■スタッフコメント
ご夫婦がこれから住まれる家が
①安心『バリアフリー』
②快適『暖かい』
③趣味が楽しめる
④くつろげる家
という点をかなえたいと思いました。基本的なゾ-ニングは、奥様のメモ書きから始まりましたが、それを実現する為に、寸法の検証や納まり確認。何度か現場に足を運び採寸しては、寸法とにらめっこしながらPLAN(おきたい家具15個を納める)の実現化に全力投球させて頂きました。
また、3階に住んでいた時の家具レイアウトのこだわりもお聞きし慣れ親しんだ使い勝手は活かしつつ、くつろげる部屋作りとしました。家具以外にも、味わいのある古道具や布、小物、食器も多かったので、鉄骨柱の凸凹を活かし、飾りスペ-スにしたりとご夫婦が集めてきた小物りなどを飾ってもらい楽しんでいただける家づくりにも注力しました。
PLANでは、奥様のご希望:『お気に入りのお手持ち家具を配置したい』をわかりやすくご説明する為に、家具採寸・写真を撮り、家具リスト(家具にナンバリング、サイズ、写真張り付け)を作成。
PLAN図の中にナンバ-リングし家具配置を書き入れ、引き戸(有効寸法)、家具と通路寸法などを書き入れたりと、御希望を反映の見える化をした資料とご説明をさせて頂いたことは、ご信頼をえられたひとつの要因かと思います。
■お客様コメント
・断熱対策をしたことでどの部屋にいても快適にすごせている。特に床暖房は、低い温度設定でも部屋が温まり気持ちいい。
デスク下や作業台の足元まで、床暖房を敷き込みしてもらって本当に良かった。
・全てが引き戸にしてもらい、幅も広く確保したとこがやはりすごくつかいやすいし、息子さんが来た時も通り易く安心です。
・好きで集めた家具が全て見える場所にあり、小物や布などを飾ったりするのが楽しみのひとつになった。
ご主人の絵が飾る壁もタップリできたので、沢山の作品を飾ってもらい楽しんでいます。
・ソフア・マッサ-ジチェア・TVと定位置が出来たので、夫婦でゆっくりお茶の飲みながらTVを見れるのもうれしい。
くつろげるスペ-スが出来たのがなによりです。
■ポイント
・断熱:外壁面、床全てに断熱材を入れ、窓は内窓、床暖房を入れた
リフォーム種別
タイプ
重量鉄骨造
家族構成
ご夫婦
築年数
33年
施工金額
1300万円
工期
3か月
リフォーム面積
91㎡
使用した商品
キッチン:Panasonic「ラクシーナ」
床材:朝日ウッドテック「ライブナチュラルMSX」
リフォーム箇所
廊下、外構、キッチン、浴室、トイレ、洗面、リビング、ダイニング、寝室
施工事例No.3190001321
WORKS同じタグの付いている事例

収納を充実させたい
デザインリフォーム
リフォームで食事が楽しくなる
ペットと快適に過ごす
子供の独立を機に
夫婦でゆったりくつろぐ空間
在宅ワークしやすい家
趣味の空間
家族の会話が増える
家族の適度な距離感を創る
間取り変更あり(間取り図掲載)

収納を充実させたい
デザインリフォーム
子育てしやすい家
リフォームで食事が楽しくなる
家族の会話が増える
間取り変更あり(間取り図掲載)

収納を充実させたい
デザインリフォーム
一人を愉しむ空間
実家への住替え
夫婦でゆったりくつろぐ空間
在宅ワークしやすい家
アウトドアリビング
趣味の空間
コレクションを大切にする
家族の会話が増える
間取り変更あり(間取り図掲載)

二世帯住宅
リフォームで食事が楽しくなる
コンテスト受賞事例
アウトドアリビング
コレクションを大切にする
家族の会話が増える
間取り変更あり(間取り図掲載)

二世帯住宅
収納を充実させたい
実家への住替え
家族の会話が増える
家族の適度な距離感を創る
間取り変更あり(間取り図掲載)

収納を充実させたい
リフォームで食事が楽しくなる
ペットと快適に過ごす
実家への住替え
結婚を機に
間取り変更あり(間取り図掲載)