WORKS
施工事例
神奈川県川崎市S様
■リフォームしたきっかけ
お父様とおじい様が2世帯で住んでいた家を、施主夫婦が再び2世帯住宅として住み継ぐためのリフォーム。
■お客様のご要望
ご両親は2階にお住まいのまま、1階を自分達らしい空間にしたいとのご要望でした。在宅ワークも多い中で、家の中に安らげて、でもちょっとワクワクするようなカフェ空間をご希望されていました。
■プランナーコメント
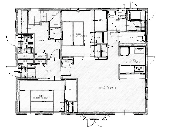
印象的な和室は、限られた面積の中で空間を有効に使うため、スキップフロアをご提案。既存窓を活かしてフロアの高さを設計。上は足を垂らして座れるカフェスペースに。水場も設けてコーヒーと映画鑑賞が楽しめます。下は奥様のワークスペース兼収納。将来は子供部屋としても使用できるように畳敷としました。
■お施主様コメント
祖父が使っていた和室の雰囲気は残しながら、モダンな雰囲気にしたいという私たちの希望をしっかり叶えてくれて、両親も喜んでいます。在宅ワークをしながら疲れたら畳で寝転んだり、上に上がれば映画館気分が味わえたり…。家でのんびりするのが大好きな私達にぴったりの家になりました。
担当店舗:リフォームプライス新百合ヶ丘店
-この事例がピックアップされているコラム一覧-
タイプ
2×4工法
家族構成
ご両親+ご夫婦
築年数
30年
施工金額
1100万円
工期
3か月
リフォーム面積
非公開
使用した商品
キッチン:GRAFTEKT
浴室:LIXIL「アライズ」
洗面化粧台:サンワカンパニー「センシー」
リフォーム箇所
廊下、キッチン、トイレ、浴室、洗面、リビング、ダイニング、寝室
施工事例No.3210002381
WORKS同じタグの付いている事例

デザインリフォーム
夫婦でゆったりくつろぐ空間

収納を充実させたい
デザインリフォーム
子育てしやすい家
リフォームで食事が楽しくなる
実家への住替え
自然素材に囲まれる
出産を機に
夫婦でゆったりくつろぐ空間
在宅ワークしやすい家
趣味の空間
コレクションを大切にする
家族の会話が増える
間取り変更あり(間取り図掲載)

中古を買ってリフォーム
子育てしやすい家
趣味の空間
ロードバイクを愉しむ
コレクションを大切にする
家族の会話が増える
間取り変更あり(間取り図掲載)

デザインリフォーム
子供の独立を機に
夫婦でゆったりくつろぐ空間
家族の会話が増える
家族の適度な距離感を創る

ペットと快適に過ごす
夫婦でゆったりくつろぐ空間
在宅ワークしやすい家
間取り変更あり(間取り図掲載)

リフォームで食事が楽しくなる
夫婦でゆったりくつろぐ空間
家族の会話が増える
間取り変更あり(間取り図掲載)