WORKS
施工事例
多摩市O様
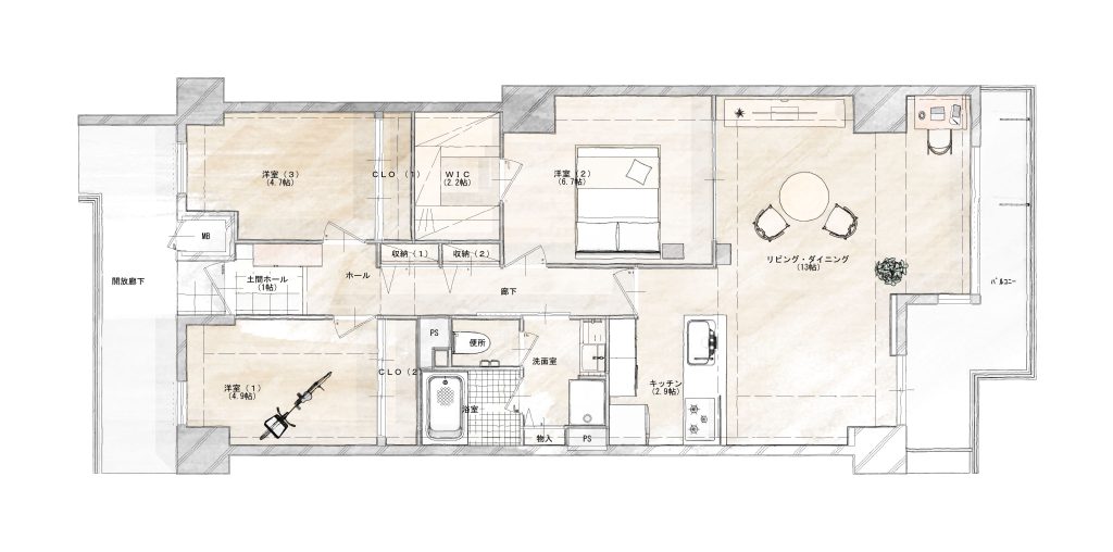
図面Before

図面After

■リフォームしたきっかけ
住み替えに伴い、築39年の住まいを全改装することに。ライフスタイルに合わせて間取り変更も検討。
■お客様のご要望
・水廻り機器の交換
・広々としたLDKにしたい
・収納の使い勝手を良くしたい
・配管を新しくしたい
・内装や建具のリフレッシュをしたい(シンプルモダン~ナチュラルの中間っぽい感じ)
■担当者のコメント
デザイン面:ナチュラルとシンプルの中間のモダンな空間とし、明るく開放感のあるしつらえとするため、床にはホワイトオーク、建具はオークを用いることでやさしい空間となりました。
空間を広く見せる工夫:ひとつひとつが閉鎖的だった空間は、間仕切り壁を取り除いたり、商品を工夫することでつながり感を大切にできる家としました。
収納の工夫:適材適所にスペースを設けることで、生活感を極力出さないで過ごせるようにしました。
コーヒーの香りにやさしく包まれる家となるような楽しいリフォームとなりました。お施主様の大好きなコーヒータイムやお料理の時間がより楽しみになっていただけましたら幸いです。写真撮影の際はおいしいコーヒーを淹れて頂き、ありがとうございました!
■お施主様コメント
マンションのフルリフォームをお願いしましたが、大変きれいな仕上がりで、感激しました。間取りや内装のデザインついて、ご担当の方に親身にご相談いただきながら、いろいろ考えたり、アレンジしたりすることができ、素敵な居住空間をゲットできただけでなく、リフォームのプロセスも、ワクワクするとても良い経験になりました。
担当店舗:リフォームプライス多摩店
タイプ
RC造
家族構成
非公開
築年数
39年
施工金額
1070万円
工期
3か月
リフォーム面積
非公開
使用した商品
キッチン:LIXIL「リシェルSI」
浴室:LIXIL「リノビオV」
洗面化粧台:LIXIL「エスタ」
トイレ:LIXIL「サティス」
建具:Panasonic
床材:Panasonic「ベリティスフロア ホワイトオーク」/朝日ウッドテック「ライブナチュラルMSX オーク」/フロアタイル
リフォーム箇所
リビング、ダイニング、寝室、廊下、トイレ、キッチン、洗面、浴室
WORKS同じタグの付いている事例

収納を充実させたい
子育てしやすい家
間取り変更あり(間取り図掲載)

中古を買ってリフォーム
収納を充実させたい
デザインリフォーム
リフォームで食事が楽しくなる
家族構成の変化
ペットと快適に過ごす
一人を愉しむ空間
夫婦でゆったりくつろぐ空間
在宅ワークしやすい家
趣味の空間
家族の会話が増える
間取り変更あり(間取り図掲載)

二世帯住宅
子育てしやすい家
リフォームで食事が楽しくなる
実家への住替え
入園、入学を機に
家族の会話が増える
家族の適度な距離感を創る
鉄骨造の家

デザインリフォーム
子育てしやすい家
在宅ワークしやすい家
家族の会話が増える

二世帯住宅
収納を充実させたい
実家への住替え
家族の会話が増える
家族の適度な距離感を創る
間取り変更あり(間取り図掲載)

二世帯住宅
家族構成の変化
ペットと快適に過ごす
自然素材に囲まれる
趣味の空間
間取り変更あり(間取り図掲載)