WORKS
施工事例
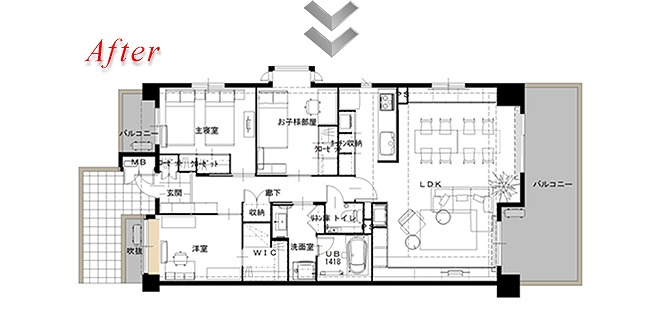
神奈川県川崎市A様邸
築20年近いお住まい、全体的に経年劣化が気になること、インテリアの雰囲気もお好みでなく、気分を一新したいとの思いから、リフォームのご依頼をいただきました。
上手く使えていなかった和室をリビングにとりこみ、LDには窓が3面になり、最上階・角部屋というメリットを最大限に生かせるLDに生まれ変わりました。
ご自宅で教室を開かれていて、生徒さんやお友達をお招きされることが多い奥様。教室の為の材料や道具など、必要なものはたくさんあるのに、収納量が全く足りていませんでした。
『必要な場所に、使いやすい収納』を考え、寸法計画、見え方など、細かいところまで一緒に打ち合わせをさせていただきました。
完成後は、普段のご生活も教室にも過不足のない収納を備えながら、すっきりと広がりを感じられる空間になりました。
担当店:リフォームプライス横浜青葉店
川崎市麻生区の中古マンションの状況、リフォームを含めた費用についてこちらで詳しく解説しています
(コラムページが開きます)
WORKS同じタグの付いている事例

二世帯住宅
デザインリフォーム
家族の会話が増える

デザインリフォーム
趣味の空間
コレクションを大切にする

中古を買ってリフォーム
収納を充実させたい
デザインリフォーム
リフォームで食事が楽しくなる
家族構成の変化
ペットと快適に過ごす
一人を愉しむ空間
夫婦でゆったりくつろぐ空間
在宅ワークしやすい家
趣味の空間
家族の会話が増える
間取り変更あり(間取り図掲載)

収納を充実させたい
デザインリフォーム
リフォームで食事が楽しくなる
ペットと快適に過ごす
子供の独立を機に
夫婦でゆったりくつろぐ空間
在宅ワークしやすい家
趣味の空間
家族の会話が増える
家族の適度な距離感を創る
間取り変更あり(間取り図掲載)

デザインリフォーム
子育てしやすい家
家族の会話が増える

収納を充実させたい
デザインリフォーム
リフォームで食事が楽しくなる
家族構成の変化
子供の独立を機に
夫婦でゆったりくつろぐ空間
在宅ワークしやすい家
家族の適度な距離感を創る
間取り変更あり(間取り図掲載)