WORKS
施工事例
東京都八王子市T様邸
【お客様の声】
●リフォームのきっかけ
年頃のお子様に個室をつくってあげたいというのがリフォームのきっかけでした。
●リフォームのこだわり
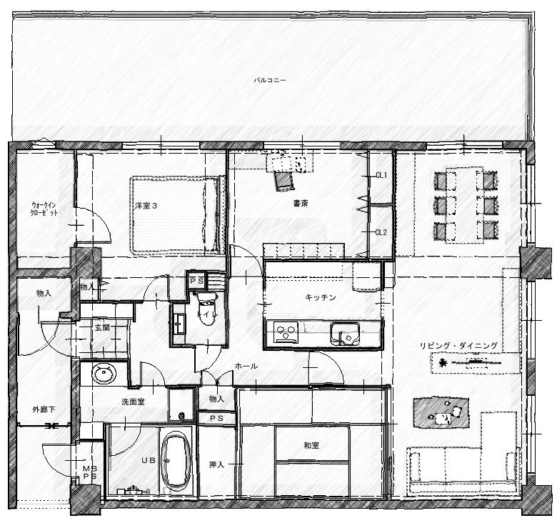
①お子様の個室を設けたい。リビングに南側の光を取り込みたい。
②リビングが狭くなる分、和室をリビングに取り込みたい。
③リビングは間接照明や床壁の素材などにこだわりたい。
④水廻りを交換したい。
とのご要望でした。
●リフォーム後の感想
ずっと思い描いていた理想の暮らしがやっと実現できて、本当に嬉しい気持ちです。家で過ごす時間がくつろげる時間になり、こんなにも生活が変わるのならもっと早くやれば良かったなと思いました。今は飾り棚に飾る雑貨や小物をインテリアショップで探す時間を家族で楽しんでいます。
【担当者のコメント】
新築の購入かリフォームか迷われていたお施主様。なかなか踏ん切りがつかないまま、時間が過ぎていました。そんな間にも家に対する夢は膨らむ一方。
そんなお施主様に、リフォームで実現できる素敵な暮らしをパースでイメージを共有しながら、沢山ご提案させて頂きました。ついに完成したときにはお施主様も私共スタッフも感動ひとしきりでした。
担当店:リフォームプライス新百合ヶ丘店・八王子店
リフォーム種別
タイプ
RC造
家族構成
夫婦+お子様1人
築年数
22年
施工金額
800万円
工期
2か月
リフォーム面積
105㎡
使用した商品
フローリング:朝日ウッドテック ライブナチュラル
タイル:LIXILエコカラット
キッチン:LIXIL シエラ
洗面台:Panasonic Lクラス
UB:LIXIL スパージュ
トイレ:LIXIL プレアス
リフォーム箇所
キッチン、洗面、浴室、リビング、ダイニング、寝室、廊下、その他、トイレ
WORKS同じタグの付いている事例

中古を買ってリフォーム
収納を充実させたい
子育てしやすい家
家族の会話が増える

収納を充実させたい
デザインリフォーム
リフォームで食事が楽しくなる
家族の会話が増える
間取り変更あり(間取り図掲載)

収納を充実させたい
デザインリフォーム
子育てしやすい家
リフォームで食事が楽しくなる
ペットと快適に過ごす
家族の会話が増える
間取り変更あり(間取り図掲載)

収納を充実させたい
デザインリフォーム
子育てしやすい家
リフォームで食事が楽しくなる
在宅ワークしやすい家
コレクションを大切にする
家族の会話が増える
間取り変更あり(間取り図掲載)
鉄骨造の家

中古を買ってリフォーム
収納を充実させたい
デザインリフォーム
リフォームで食事が楽しくなる
家族構成の変化
ペットと快適に過ごす
一人を愉しむ空間
夫婦でゆったりくつろぐ空間
在宅ワークしやすい家
趣味の空間
家族の会話が増える
間取り変更あり(間取り図掲載)

二世帯住宅
リフォームで食事が楽しくなる
コンテスト受賞事例
アウトドアリビング
コレクションを大切にする
家族の会話が増える
間取り変更あり(間取り図掲載)