WORKS
施工事例
東京都中野区S様邸
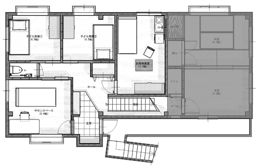
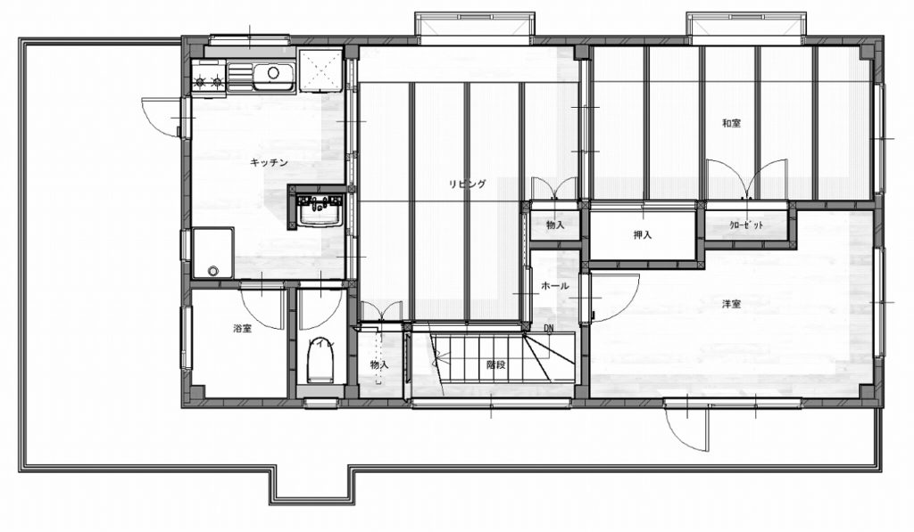
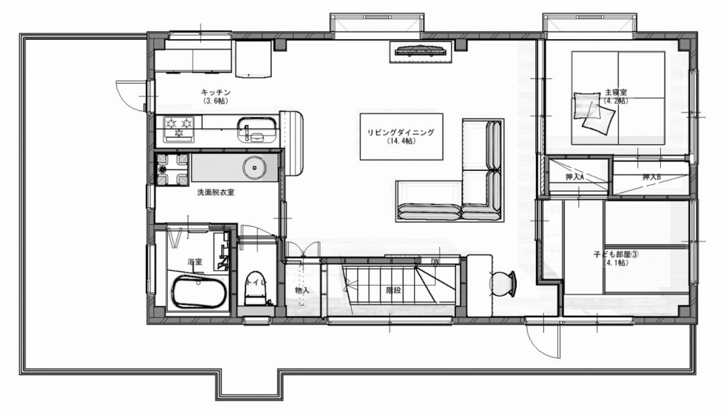
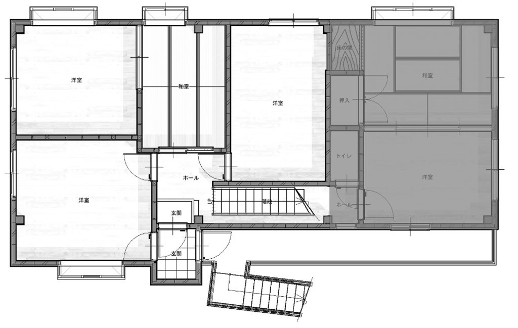
ご主人様のご実家に同居することになり、今回のリフォームの検討が始まりました。ご家族がとても仲が良く、近くにご親戚やお友達も多い上、アクティブで多趣味なご夫婦。人をたくさん呼べたり、卓球台を置いて練習が出来るような広いリビングをご希望でした。また、そんなリビングを見ながら料理が出来る、対面キッチンをご希望でした。
リビングに向かってキッチンを配置しようとすると、キッチンが小さくなってしまったり、洗面所が狭くなってしまうため、あきらめていらっしゃったのですが、対面という形にこだわらずに、本来の目的であるリビングとのつながりを作ることで、キッチンの大きさも洗面所の広さも、実現することができました。リビングは広いだけではなく、四方から日の光が差し込む明るい空間となりました。
個々のプライベートな空間もしっかり確保しつつ、みんなが集まりたくなるような陽だまりLDK、居心地のよい住まいができました。
担当店:リフォームプライス杉並店
タイプ
ALC
家族構成
ご夫婦+お母様+お子様3名
築年数
28年
施工金額
1,260万円
工期
2か月半
リフォーム面積
非公開
使用した商品
■キッチン:LIXILシエラ ■浴室:TOTOサザナ
■洗面台:造作 ■トイレ:LIXILサティス
リフォーム箇所
キッチン
WORKS同じタグの付いている事例

デザインリフォーム
一人を愉しむ空間
家族の適度な距離感を創る

デザインリフォーム
夫婦でゆったりくつろぐ空間
コンテスト受賞事例
コレクションを大切にする

中古を買ってリフォーム
夫婦でゆったりくつろぐ空間
コレクションを大切にする

収納を充実させたい
デザインリフォーム
リフォームで食事が楽しくなる
自然素材に囲まれる
夫婦でゆったりくつろぐ空間
家族の会話が増える
間取り変更あり(間取り図掲載)

収納を充実させたい
デザインリフォーム
一人を愉しむ空間
実家への住替え
夫婦でゆったりくつろぐ空間
在宅ワークしやすい家
アウトドアリビング
趣味の空間
コレクションを大切にする
家族の会話が増える
間取り変更あり(間取り図掲載)

中古を買ってリフォーム
子育てしやすい家
趣味の空間
ロードバイクを愉しむ
コレクションを大切にする
家族の会話が増える
間取り変更あり(間取り図掲載)