WORKS
施工事例
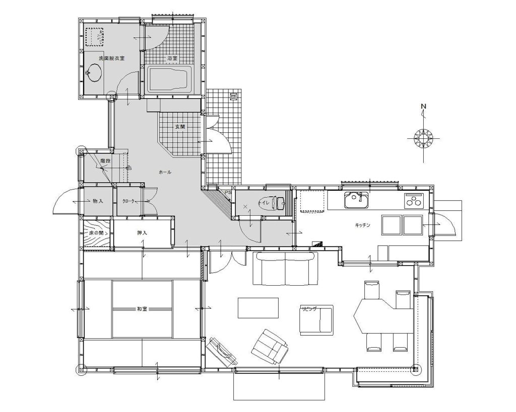
東京都町田市T様邸
ご両親の介護が一段落し、これから終の住処として良い家にしたいという思いをきっかけにお声掛け頂きました。荷物置きとなってしまっている和室スペースを有効に使えるようにすること、ご主人様の仕事で打合せスペースとして使える応接室があること、明るく開放的なキッチンにすること、暖かくて心地の良いリビングにすること、などを主なご要望として、最初にお話しを頂いておりました。
プラン段階では、「これからどう過ごすか」をテーマとし、採光採風の良い南面全てをLDKとして見通しの良いゾーニングをご提案をさせて頂きました。来客は月に一度程度位とのことでしたのでリビングスペースを応接間と兼ねる様に考え、普段のご生活が一番良いものになるよう計画しました。また、デザイン面では、既存で残したいとご希望にあったダイニングテーブルやソファ等との調和をポイントに計画しました。
担当店:リフォームプライス町田店
リフォーム種別
タイプ
在来木造
家族構成
ご夫婦
築年数
24年
施工金額
1,000万円
工期
4か月
リフォーム面積
48㎡
使用した商品
■LIXIL Panasonic 朝日ウッドテック
リフォーム箇所
キッチン
WORKS同じタグの付いている事例

収納を充実させたい
デザインリフォーム
子育てしやすい家
リフォームで食事が楽しくなる
実家への住替え
自然素材に囲まれる
出産を機に
夫婦でゆったりくつろぐ空間
在宅ワークしやすい家
趣味の空間
コレクションを大切にする
家族の会話が増える
間取り変更あり(間取り図掲載)

収納を充実させたい
デザインリフォーム
夫婦でゆったりくつろぐ空間
在宅ワークしやすい家
趣味の空間
コレクションを大切にする
家族の適度な距離感を創る
間取り変更あり(間取り図掲載)

収納を充実させたい
デザインリフォーム
リフォームで食事が楽しくなる
家族構成の変化
子供の独立を機に
夫婦でゆったりくつろぐ空間
在宅ワークしやすい家
趣味の空間
家族の会話が増える
家族の適度な距離感を創る
間取り変更あり(間取り図掲載)

中古を買ってリフォーム
収納を充実させたい
デザインリフォーム
子育てしやすい家
リフォームで食事が楽しくなる
家族構成の変化
自然素材に囲まれる
出産を機に
夫婦でゆったりくつろぐ空間
入園、入学を機に
家族の会話が増える
間取り変更あり(間取り図掲載)

リフォームで食事が楽しくなる
家族構成の変化
子供の独立を機に
一人を愉しむ空間
夫婦でゆったりくつろぐ空間
在宅ワークしやすい家
家族の会話が増える
家族の適度な距離感を創る
間取り変更あり(間取り図掲載)

収納を充実させたい
デザインリフォーム
リフォームで食事が楽しくなる
ペットと快適に過ごす
実家への住替え
夫婦でゆったりくつろぐ空間
在宅ワークしやすい家
コレクションを大切にする
家族の会話が増える
間取り変更あり(間取り図掲載)