WORKS
施工事例
東京都世田谷区N様
中古物件購入に伴うリフォーム
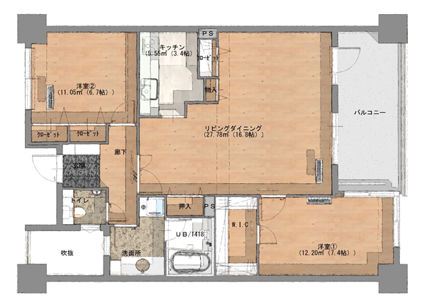
①キッチンが非常に暗い・寂しい感じ→間仕切りを取っ払い、大きなLDKにしたい
②当時お住まいだったマンションと比べてLDの天井高さが低く感じる、圧迫感を感じる。→天井高さをできるだけ上げたい
③床や建具の色が全く好みではない。とにかくかっこよくしたい!
マンションの全体的なリフォームをお願いしました。3社に見積もりを取りましたが、こちらに決めた理由は友人からの紹介で施工に満足して推薦してくれたことと、プランナーのNさんが私達のイメージと部屋の作りから素敵なご提案を色々してくださったことです。イメージ通りのオリジナル感のある素敵なリビングはどなたが来ても褒めてもらえますし、水回りも全てとても素敵に使いやすくしていただき、お願いして本当に良かったと満足しております。
ご近所へのご配慮もとても丁寧で、共有部で心配なことがあるとすぐに駆けつけてくださったり、工事中もより良くなるアドバイスやより良い施工をいつも考えて進めてくださった営業担当Fさん、施工担当Tさん、本当にありがとうございました。
工事の方も皆さんとても気さくで良い方で会社の良い雰囲気が出ているように思いました。工事後もきちんとフォローしてくださいますし、またリフォーム部分を考える折にはお世話になった3人のチームに是非お願いしたいと思います。
本当に長い期間、お世話になりました!素敵なお部屋を大切に気持ちよく生活していきたいと思います。
Before

デザイン:キッチンの間仕切りを撤去し、キッチンとカップボード位置を反転しました。キッチンに立ちながらリビング内を見渡せるだけではなく、ベランダ窓越しに外が見えるようにしました
After

写真ではわかりにくいのですが、、、桜並木の通りに面しているので、春先はお花見気分、夏の緑、秋の紅葉と四季の変化も楽しんで頂けると思います
Before

アイデア:リビングダイニングの十字梁は事前に施工担当・営業担当と現地確認したところ躯体梁と一部レンジフードのダクト梁だということが分かりました。
After

ダクト梁は高さをあげられても僅か数センチしかなく費用対効果があまりないので、ダクト梁は手をつけずに間接照明を提案しました。
▽TV裏

デザイン:普段は遠方に単身赴任中のご主人様が帰ってきた際に、ソファに寝転んで趣味の映画鑑賞を楽しんでもらえるようTVの設置高さ等こだわりました。また、奥様の『見た目をかっこよく』のご要望を叶えるため、配線やTV以外の機器類が見えないようにTVの壁の裏側に棚やコンセント・配線孔を設けました。
▽キッチン

キッチンの袖壁も隠れ収納にし、生活感が見えないように工夫しました。
-この事例がピックアップされているコラム一覧-
タイプ
RC造
家族構成
ご夫婦・お子様
築年数
23年
施工金額
900万円
工期
3か月
リフォーム面積
83
使用した商品
キッチン:トクラス「Bb」
浴室:TOTO「マンションリモデルバスルームWY」
洗面:LIXIL「L.C.」
トイレ:TOTO「ネオレスト」
床材:朝日ウッドテック「アネックスST」
タイル:LIXIL「エコカラット」
リフォーム箇所
寝室、浴室、廊下、トイレ、洗面、リビング、ダイニング、キッチン
WORKS同じタグの付いている事例

収納を充実させたい
デザインリフォーム
リフォームで食事が楽しくなる
ペットと快適に過ごす
夫婦でゆったりくつろぐ空間
在宅ワークしやすい家
家族の会話が増える
間取り変更あり(間取り図掲載)

収納を充実させたい
デザインリフォーム
リフォームで食事が楽しくなる
家族構成の変化
子供の独立を機に
夫婦でゆったりくつろぐ空間
在宅ワークしやすい家
趣味の空間
家族の会話が増える
家族の適度な距離感を創る
間取り変更あり(間取り図掲載)

リフォームで食事が楽しくなる
家族構成の変化
子供の独立を機に
夫婦でゆったりくつろぐ空間
間取り変更あり(間取り図掲載)

中古を買ってリフォーム
夫婦でゆったりくつろぐ空間

デザインリフォーム
家族構成の変化
子供の独立を機に
一人を愉しむ空間
趣味の空間
コレクションを大切にする
間取り変更あり(間取り図掲載)

収納を充実させたい
子供の独立を機に
夫婦でゆったりくつろぐ空間
在宅ワークしやすい家
趣味の空間
コレクションを大切にする