WORKS
施工事例
東京都日野市K様邸
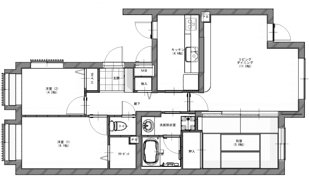
冬場はとても寒く、設備機器も古くなってきたことから、今後も快適に過ごせる全体的なリフォームをお考えでした。外壁面に断熱材を施工し、暖かい空間に。ダイニングへの行き来がし難く暗いキッチンは、吊戸棚をなくし、扉の位置を変え、開放的で動きやすく。忙しい朝も、洗面台と洗濯機の前に同時に人が立てる動線に。家事の時間を短縮し、奥様の自分だけの時間が増え、家族との時間もより大事に出来るようにしました。必要最低限の寝室スペースと仕舞う物に合せて使いやすい形に設けたクローゼットと押入れ。洋室には子どもたちの収納と本棚を増やしました。足を伸ばしてくつろげる1坪サイズのお風呂も実現できました。構造上必要な梁は、LDと寝室をゆるくつなげるアーチとしてアクセントにもなります。LDKには家族4人が自然と集まり、思い出の詰った大事なテーブルを囲み、あたたかく、ほっとする、家族の時間がいつまでも流れます。
担当店:リフォームプライス多摩店
タイプ
RC構造
家族構成
ご夫婦+息子様+娘様
築年数
21年
施工金額
860万円
工期
2か月
リフォーム面積
非公開
リフォーム箇所
キッチン、浴室
WORKS同じタグの付いている事例

収納を充実させたい
デザインリフォーム
リフォームで食事が楽しくなる
家族の会話が増える
間取り変更あり(間取り図掲載)

収納を充実させたい
デザインリフォーム
リフォームで食事が楽しくなる
自然素材に囲まれる
夫婦でゆったりくつろぐ空間
家族の会話が増える
間取り変更あり(間取り図掲載)

二世帯住宅
家族構成の変化
ペットと快適に過ごす
自然素材に囲まれる
趣味の空間
間取り変更あり(間取り図掲載)

中古を買ってリフォーム
収納を充実させたい
デザインリフォーム
家族構成の変化
一人を愉しむ空間
夫婦でゆったりくつろぐ空間
趣味の空間
間取り変更あり(間取り図掲載)

中古を買ってリフォーム
子育てしやすい家
家族の会話が増える

収納を充実させたい
子育てしやすい家
リフォームで食事が楽しくなる
夫婦でゆったりくつろぐ空間
家族の会話が増える
間取り変更あり(間取り図掲載)