WORKS
施工事例
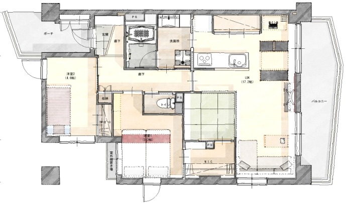
東京都武蔵野市F様邸
娘様が小学生に上がる頃になり、リフォームを検討。元々3年前より弊社にご相談頂いていて、資金計画が立たないとのことで、一度断念されていましたが、この度再度リフォーム計画を再開しました。一番のご要望は、キッチンにありました。孤立して狭いキッチンは、動線も悪く、また、夏場の暑さがとてもひどく扇風機を入れている状態でした。それによってまた、動線が悪くなり、家事への嫌悪感と家族とのふれあいを増やしたいとリフォームを検討されました。プランでこだわったのは、ご家族のふれあいを増やすことに注力しました。とても仲の良いご家族で、リフォーム後もそんな3人の時間を多く過ごしてほしいと思いました。具体的には、「視線が交わる回数を増やすこと」です。LDKのどこに居ても背を向けることなくお互いへ視線が向くような配置にすることで、勉強を教えているご主人と娘さんをキッチンで作業する奥さんが横目で見ていたり、奥様と娘様がキッチンで仲良く料理をしているところを、リビングでくつろぐご主人様が見て微笑んでいる。そんな空間になるよう心がけました。
担当店:リフォームプライス久我山店
WORKS同じタグの付いている事例

中古を買ってリフォーム
収納を充実させたい
デザインリフォーム
子育てしやすい家
リフォームで食事が楽しくなる
家族構成の変化
自然素材に囲まれる
出産を機に
在宅ワークしやすい家
入園、入学を機に
家族の会話が増える
家族の適度な距離感を創る
間取り変更あり(間取り図掲載)

中古を買ってリフォーム
収納を充実させたい
デザインリフォーム
ペットと快適に過ごす
間取り変更あり(間取り図掲載)

収納を充実させたい
子育てしやすい家
リフォームで食事が楽しくなる
入園、入学を機に
家族の会話が増える

デザインリフォーム
趣味の空間

中古を買ってリフォーム
収納を充実させたい
デザインリフォーム
子育てしやすい家
リフォームで食事が楽しくなる
家族構成の変化
自然素材に囲まれる
出産を機に
夫婦でゆったりくつろぐ空間
入園、入学を機に
家族の会話が増える
間取り変更あり(間取り図掲載)

収納を充実させたい
デザインリフォーム
夫婦でゆったりくつろぐ空間
在宅ワークしやすい家
コレクションを大切にする
間取り変更あり(間取り図掲載)