WORKS
施工事例
多摩市I様

■リフォームのきっかけ
子供の独立に合わせ、夫婦でゆったりと過ごせる家にしたかったため。
■ご要望
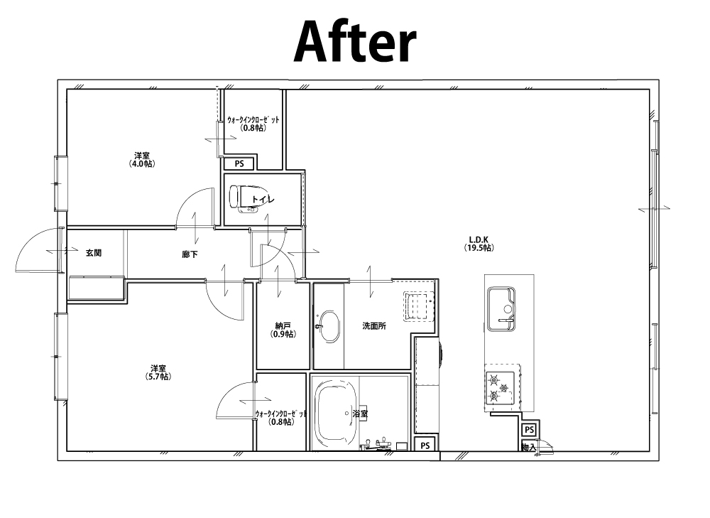
・閉鎖的なキッチンを開放的な空間にしたい
・書斎スペースが欲しい
■お施主様コメント
LDKが広くなったことが一番嬉しいです。キッチンや壁の色、ライティングが上手くコーディネートできたことも良かったです。
マンションはどうしても構造上天井の高さに差が出てしまうもの。
和室を取り込んで一体化するリフォームの中で、天井の段差がなるべく気にならないように配慮をしています。
Before〜工事中

After

天井カセットエアコンやレンジフードのダクトの関係もあり、天井を完璧にフラットにすることはできません。
躯体の梁の大きさに合わせて高さを揃えたりと工夫を重ねることで目立たなくしています。
担当店舗:リフォームプライス多摩店
タイプ
RC造
家族構成
ご夫婦
築年数
23年
施工金額
620万円
工期
1.5ヶ月
リフォーム面積
62m2(総面積78m2)
使用した商品
キッチン:トクラス「コラージア」
キッチン面材:スムースモルタル
キッチン天板:ハイグラーナホワイト
床材:Panasonic「ウスイータ」グレージュヒッコリー柄
リフォーム箇所
リビング、キッチン、ダイニング、寝室、廊下
施工事例No.4240004345
WORKS同じタグの付いている事例

収納を充実させたい
リフォームで食事が楽しくなる
ペットと快適に過ごす
子供の独立を機に
夫婦でゆったりくつろぐ空間
間取り変更あり(間取り図掲載)

デザインリフォーム
子育てしやすい家
夫婦でゆったりくつろぐ空間
在宅ワークしやすい家
趣味の空間
コレクションを大切にする
間取り変更あり(間取り図掲載)

収納を充実させたい
デザインリフォーム
家族構成の変化
夫婦でゆったりくつろぐ空間
在宅ワークしやすい家
間取り変更あり(間取り図掲載)

リフォームで食事が楽しくなる
夫婦でゆったりくつろぐ空間
家族の会話が増える
間取り変更あり(間取り図掲載)

中古を買ってリフォーム
収納を充実させたい
デザインリフォーム
リフォームで食事が楽しくなる
家族構成の変化
ペットと快適に過ごす
一人を愉しむ空間
夫婦でゆったりくつろぐ空間
在宅ワークしやすい家
趣味の空間
家族の会話が増える
間取り変更あり(間取り図掲載)

デザインリフォーム
リフォームで食事が楽しくなる
夫婦でゆったりくつろぐ空間
コレクションを大切にする