東京・神奈川・埼玉地区限定
地域最大級のリフォーム専門店

EVENT

イベント情報

イベント情報一覧に戻る
セミナー内覧会相談会オンライン終了しました

ご自宅から参加!完成現場オンライン見学会

これから中古物件(戸建・マンション)の購入や持ち家のリフォームを考えている皆様に、オンライン内覧会を開催致します!

 

【開催日】

10月24日(土)11:00~12:30

※完全予約制

 

【このような方へおすすめ】

・これから中古物件を買ってリフォームを考えているお客様
自宅にワークスペースを作ろうと思っているお客様
リビングを広くして家族の時間を作りたいと考えているお客様
マンションリフォームに興味のあるお客様
好きなテイストをお持ちのお客様
実際にリフォームをされたお客様の意見を知りたいお客様
中古マンションリフォームの流れを知りたいお客様

 

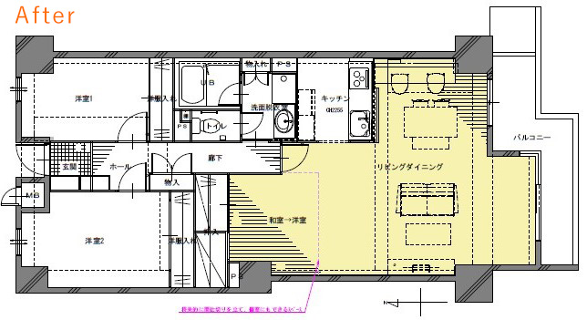
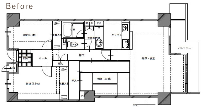
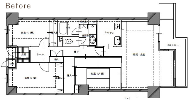
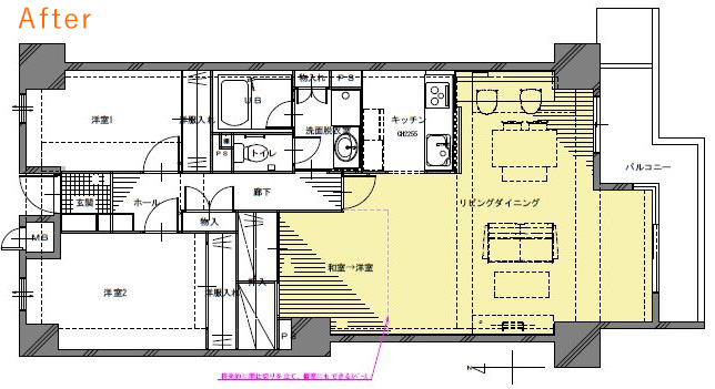
【今回の物件】

築30年(リフォーム当時)・約250万円でリフォームしたマンションの一室です

 

【プログラム】

・ご挨拶・内容と流れのご説明《10分》
・お施主様のご紹介とインタビュー「リフォームのきっかけ」「リフォームを思い立ってからどのように行動したか」《5分》
・お部屋を周りながら「お気に入り&こだわった箇所」「おすすめのリフォーム方法」「リフォーム後の暮らしの変化」などのご説明《20分》
・質疑応答《5分》
・リフォームの流れご説明《5分》
・お施主様インタビュー②「リフォーム会社をどのように探したのか、決め手はどこだったのか」「思ったよりも大変だったところ」「心配だったこと、気を付けていたこと」《10分》
・質疑応答《5分》
・アンケートご記入/ご案内《10分》

 

※ご案内中に疑問点、もっとご覧になりたい点がございましたら、ご遠慮なくその場でお申しつけください。

 

【オンライン内覧会ご案内役】

 

リフォームコンサルタント歴6年
現在マーケティング部所属
坊之下(ぼうのした)

 

リフォームコンサルタント歴10年
設計部エントリエ所属

 

 

◯参加方法
オンラインツール【Zoom】を使用いたします
①フォームまたはお電話にてご予約
②モバイルをご利用の場合はzoomアプリをインストール(PCの場合はインストール不要)
③弊社から【Zoom】のご使用方法とご参加に必要なURLをお送りします
④当日お時間になりましたらURLをクリックしていただきパスワードを入力いただくだけ!

 

◯参加費用
完全無料

 

皆様とお会いできることを楽しみにしております!

是非、この機会にご参加くださいませ!

MAP開催場所

住所※ご自宅から参加出来ます

イベント情報一覧に戻る