EVENT

リフォーム工事中のお宅での見学会を開催致します。
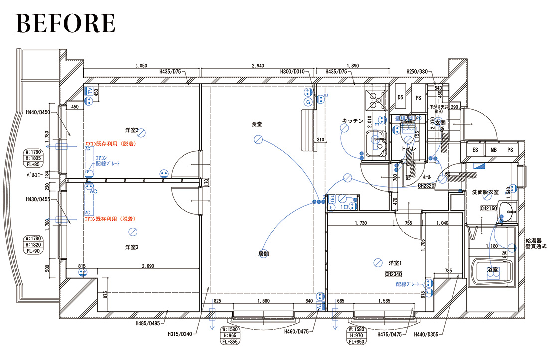
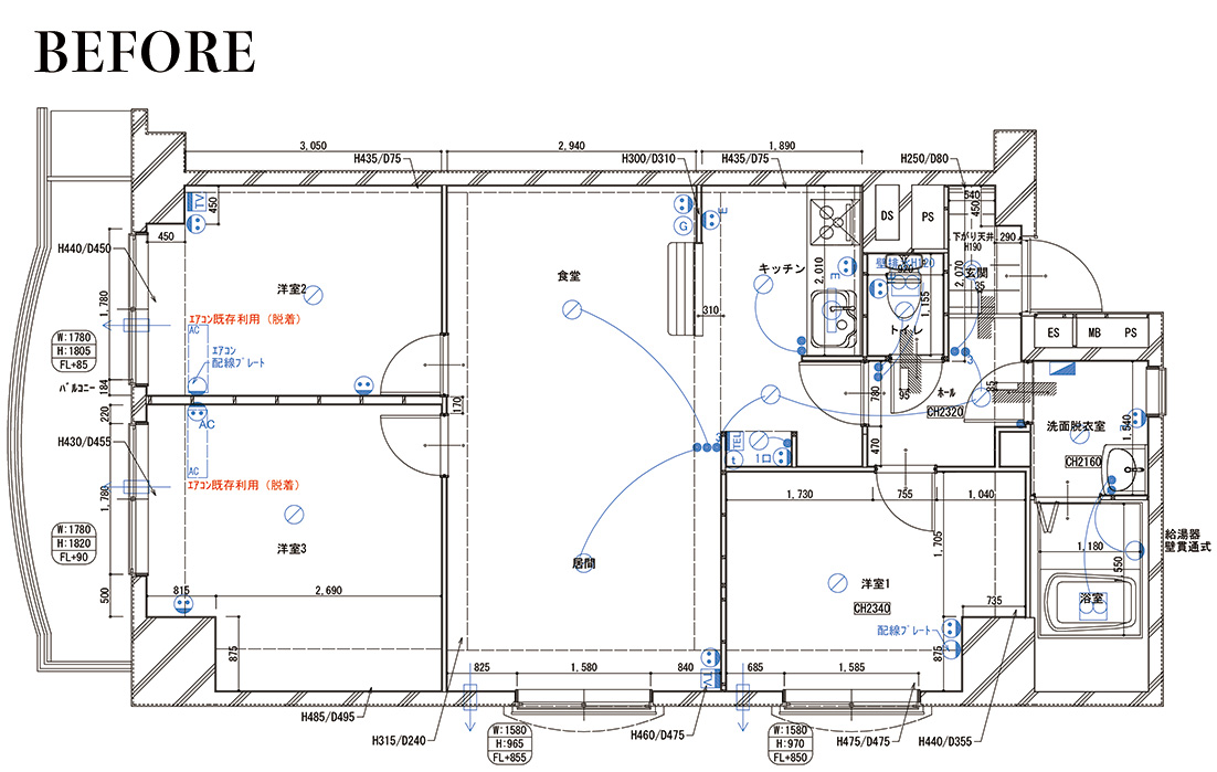
水廻り機器の解体後の状態や給水、給湯配管を一新した状態をご覧いただけます。
完成後には見ることが出来ない大切な部分を見るチャンスです。
現地ではリフォームのプロがお待ちしております。
【このような方へおすすめ】
・普段見られない解体後の様子が見たい
・漏水の心配が少ない最新の給水、給湯について知りたい
・リフォームのプロに解説してもらいながら見学したい
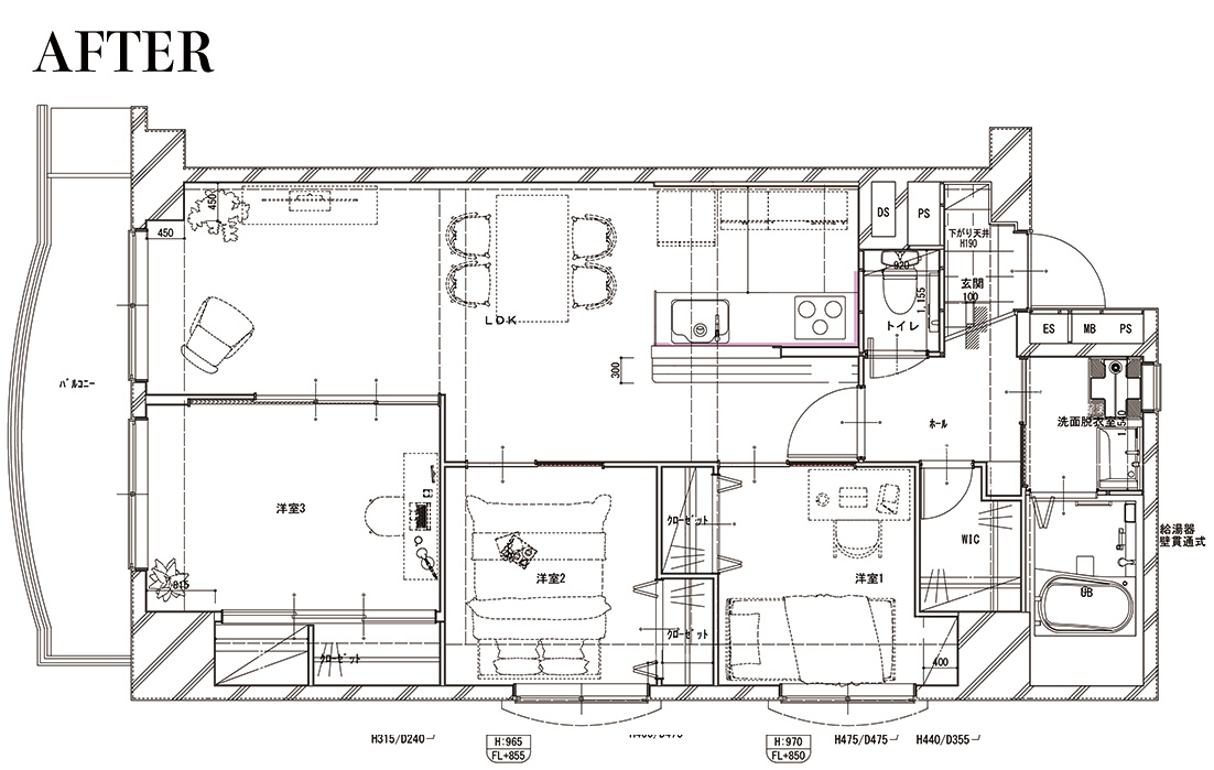
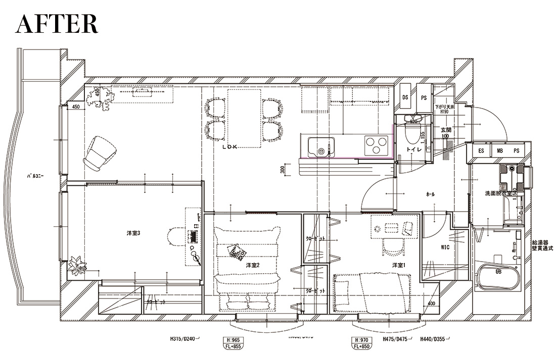
【今回の物件】
■会場:府中市住吉町2-30-73 ヴェルミドール多摩川1015室
◆予約なしで見学できます◆
◯参加費用
完全無料
皆様とお会いできることを楽しみにしております!
是非、この機会にご参加くださいませ!