EVENT

中古物件のご購入や持ち家のリフォームをお考えの皆様に向けた現地開催の内覧会を実施致します!
【このような方へおすすめ】
・中古で物件購入してリフォームを検討している方
・ご所有のご自宅をきれいにしたい方
・内装リフォームの参考にしたい方
・トイレ、洗面台交換の参考にしたい方
・既存品を再活用するリフォームの参考にしたい方
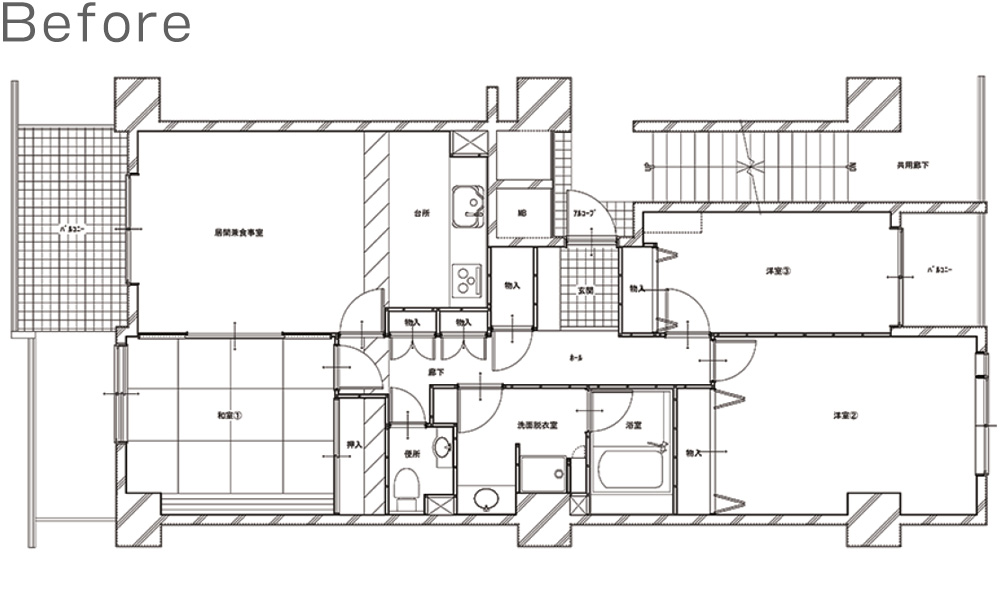
【今回の物件】
【プログラム】
〇見学会現場住所
東京都八王子市みなみ野1-11 ヴェルディールみなみ野東3号棟505号室
◆完全予約制◆
各回人数制限を設けております。
ご予約はフリーダイヤル0120-89-1802、または本ページ上部の「この日程で申し込む」より、お早めにどうぞ。
◯参加費用
完全無料
皆様とお会いできることを楽しみにしております!
是非、この機会にご参加くださいませ!
住所東京都八王子市みなみ野1-11