EVENT

中古物件のご購入や持ち家のリフォームをお考えの皆様に向けたリフォーム完成現場見学会を開催致します!
【このような方へおすすめ】
・中古で物件購入してリフォームを検討している方
・キッチンを対面にして家族との会話を楽しみたい方
・内装リフォームの参考にしたい方
・収納を増やしたいとお悩みの方
・トイレや洗面台交換の参考にしたい方
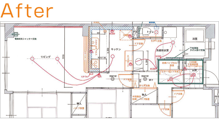
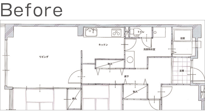
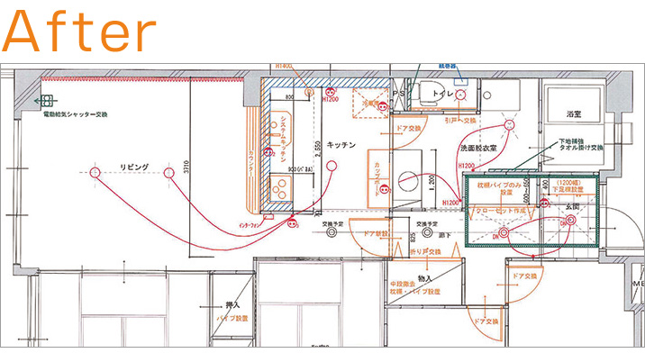
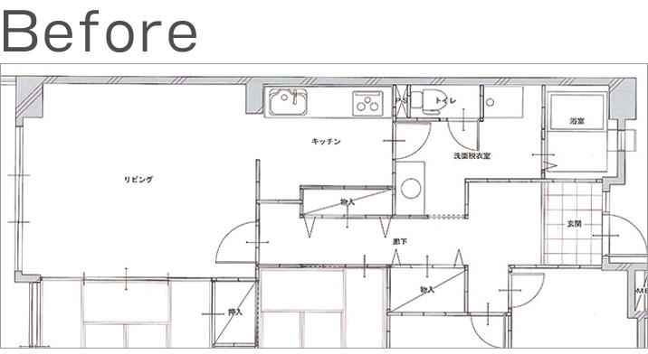
【今回の物件】
【プログラム】
〇見学会現場住所
埼玉県入間市内のマンション
※詳細な住所はご予約完了後にお伝えします
◯参加方法
現地、または4月29日(金・祝)のみオンラインツールZoomにてご参加いただけます。
ご予約時にご希望のご参加方法をお知らせください。
※オンラインは【10時】と【13時】の2回開催になります
Zoomでのご参加手順
①フォームまたはお電話にてご予約
②モバイルをご利用の場合はZoomアプリをインストール(PCの場合はインストール不要)
③弊社からZoomのご使用方法とご参加に必要なURLをお送りします
④当日お時間になりましたらURLをクリックしていただきパスワードを入力いただくだけ!
◆完全予約制◆
各回人数制限を設けております。
ご予約はフリーダイヤル0120-89-1802、または本ページ上部の「この日程で申し込む」より、お早めにどうぞ。
◯参加費用
完全無料
皆様とお会いできることを楽しみにしております!
是非、この機会にご参加くださいませ!
住所埼玉県入間市内、またはオンライン(29日のみ)