東京・神奈川・埼玉地区限定
地域最大級のリフォーム専門店

EVENT

イベント情報

イベント情報一覧に戻る
内覧会オンライン終了しました

3/27 中古リノベ現場見学会

リフォーム完成現場見学会

中古物件のご購入や持ち家のリフォームをお考えの皆様に向けたオンライン内覧会を開催致します!

 

【このような方へおすすめ】

・中古で物件購入してリフォームを検討している方
・キッチンを対面にして広いリビングにしたい方
・テレワークスペースを検討している方
・ウォークインクローゼットが欲しい方
・壁紙の色使いを参考にしたい方

 

【今回の物件】

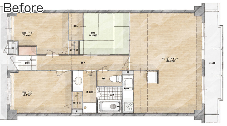
マンション・築28年(リフォーム当時)・面積77㎡・3人家族

 

リフォームのポイント

中古マンションをご購入されたお施主様。キッチンを対面にしてLDKを広々とした空間にリフォームしただけでなく、収納量も充実させました。
壁紙もアクセントで柄物を取り入れ素敵な空間になりました。お子様を見守りながら料理を楽しめて、テレワークする際も集中できるおうちになり、喜んでいただけました。

現場画像

間取り図before

間取り図after

 

【プログラム】

・ご挨拶・内容と流れのご説明《10分》
・お部屋を周りながら「お気に入り&こだわった箇所」「おすすめのリフォーム方法」「リフォーム後の暮らしの変化」などのご説明《20分》
・質疑応答《5分》
・リフォームの流れご説明《5分》
・質疑応答《5分》
・アンケートご記入/ご案内《10分》

 

※ご案内中に疑問点、もっとご覧になりたい点がございましたら、ご遠慮なくその場でお申しつけください。

 

◯参加方法
オンラインツール【Zoom】にてご参加いただけます。

 

ご参加手順

①フォームまたはお電話にてご予約
②モバイルをご利用の場合はzoomアプリをインストール(PCの場合はインストール不要)
③弊社から【Zoom】のご使用方法とご参加に必要なURLをお送りします
④当日お時間になりましたらURLをクリックしていただきパスワードを入力いただくだけ!

 

◆完全予約制◆ 

各回人数制限を設けております。

ご予約はフリーダイヤル0120-89-1802、または本ページ上部の「この日程で申し込む」より、お早めにどうぞ。

 

◯参加費用
完全無料

 

皆様とお会いできることを楽しみにしております!

是非、この機会にご参加くださいませ!

イベント情報一覧に戻る