東京・神奈川・埼玉地区限定
地域最大級のリフォーム専門店

EVENT

イベント情報

イベント情報一覧に戻る
内覧会相談会オンライン終了しました

10/30 リノベ完成現場見学会「既存との融合を上手に実現」

リフォーム完成現場見学会

これから中古物件(戸建・マンション)の購入や持ち家のリフォームを考えている皆様に、オンライン内覧会を開催致します!

 

【このような方へおすすめ】

マンションリフォームをしたお宅を見たい方
最新設備の紹介を見たい方
既存を活かしつつリフォームしたいと考えている方
対面キッチンにしたい方
・リフォーム後の暮らしの変化を聞きたい方

 

【今回の物件】

マンション・築26年(リフォーム当時)・リフォーム面積60㎡・お客様一人暮らし

 

リフォームのポイント

リビングが暗く明るい空間にしたいと当初はクロス張替えを検討していたお客様でしたが、ご要望を伺う中で内装だけでなくキッチンの向きを変更したり、お持ちの家具に合わせたカウンターを設置するなど既存との融合を上手に実現したお客様宅になります。

現場画像

before図面

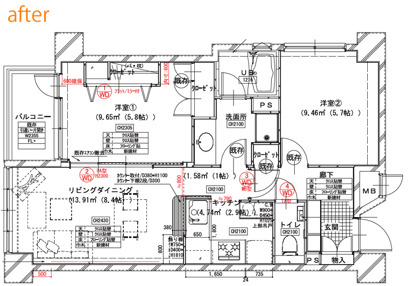
after図面

 

【プログラム】

・ご挨拶・内容と流れのご説明《10分》
・お部屋を周りながら「お気に入り&こだわった箇所」「おすすめのリフォーム方法」「リフォーム後の暮らしの変化」などのご説明《20分》
・質疑応答《5分》
・リフォームの流れご説明《5分》
・質疑応答《5分》
・アンケートご記入/ご案内《10分》

 

※ご案内中に疑問点、もっとご覧になりたい点がございましたら、ご遠慮なくその場でお申しつけください。

 

◯参加方法
オンラインツール【Zoom】を使用いたします
①フォームまたはお電話にてご予約
②モバイルをご利用の場合はzoomアプリをインストール(PCの場合はインストール不要)
③弊社から【Zoom】のご使用方法とご参加に必要なURLをお送りします
④当日お時間になりましたらURLをクリックしていただきパスワードを入力いただくだけ!

 

◯参加費用
完全無料

 

皆様とお会いできることを楽しみにしております!

是非、この機会にご参加くださいませ!

MAP開催場所

住所※ご自宅から参加出来ます

イベント情報一覧に戻る