EVENT

これから持ち家のリフォームや中古物件のご購入をお考えの皆様に、オンラインでご参加いただけるリフォーム完成現場見学会を開催致します!
【このようなお悩みやご興味のある方へおすすめ】
・マンションリノベーションをしたお宅を見学したい方
・インテリアテイストの参考にしたい方
・バリアフリー住宅を見学したい方
・大迫力のモニターでスポーツ観戦やコレクションの展示など趣味を自宅で満喫したい方
・ワークスペースを確保する参考にしたい方
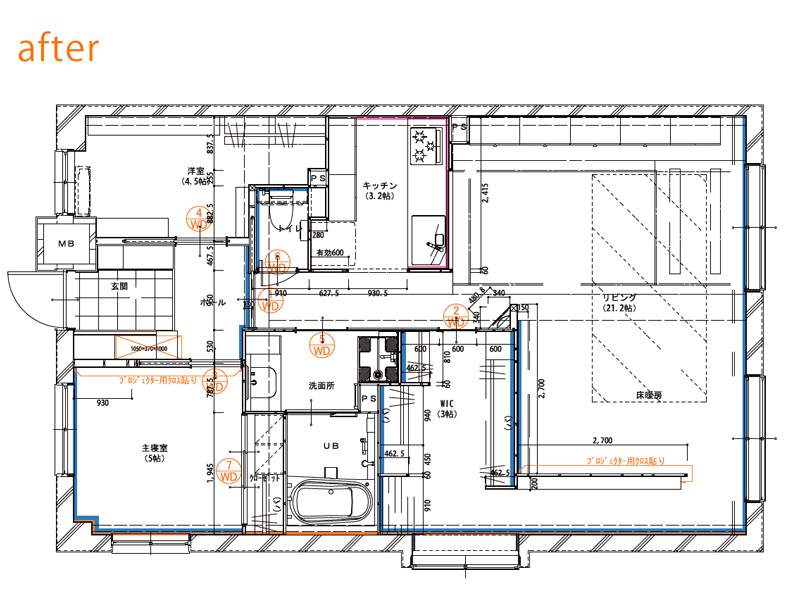
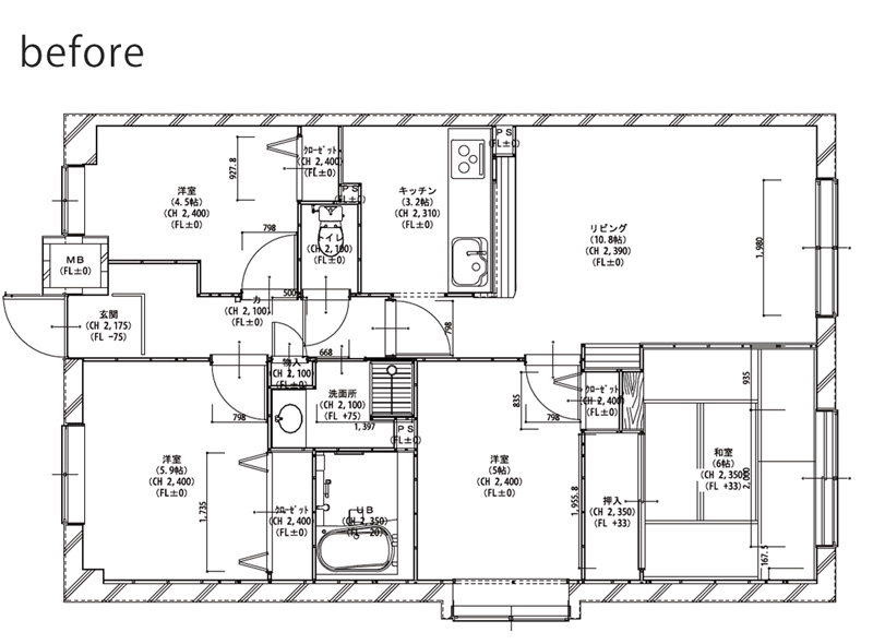
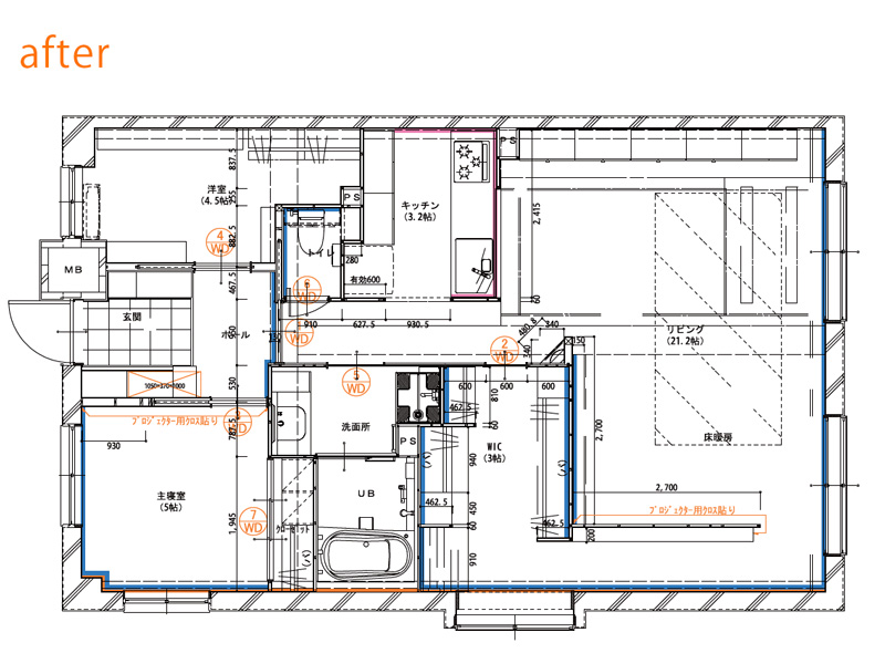
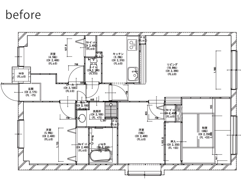
【今回の物件】
【プログラム】
〇開催日時
2021年10月23日(土)
10:00~/13:00~ (所要時間1時間程度)
◯参加方法
オンラインツール【Zoom】を使用いたします
①フォームまたはお電話にてご予約
②モバイルをご利用の場合はzoomアプリをインストール(PCの場合はインストール不要)
③弊社から【Zoom】のご使用方法とご参加に必要なURLをお送りします
④当日お時間になりましたらURLをクリックしていただきパスワードを入力いただくだけ!
◯参加費用
完全無料
皆様とお会いできることを楽しみにしております!
是非、この機会にご参加くださいませ!