EVENT

これから持ち家のリフォームや中古物件(戸建・マンション)のご購入を考えている皆様に、オンラインのリフォーム完成現場見学会を開催致します!
【こんなお悩みのある方のご参加をお待ちしております】
・二世帯住宅にしたいけどどんな間取りがいいか?
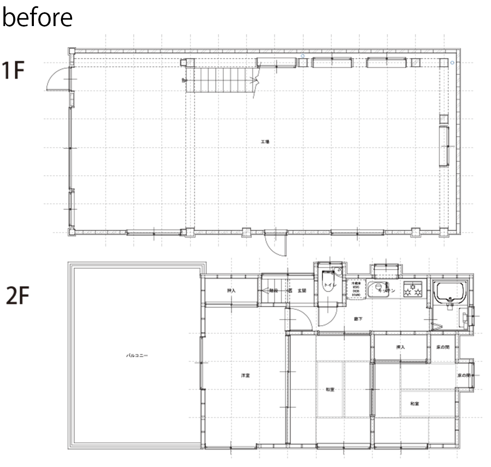
・工場など自営業をしていたスペースを住居スペースにできるの?
・最新の設備機器や外部リフォームの様子を知りたい
【今回の物件】
【プログラム】
◯参加方法
オンラインツール【Zoom】を使用いたします
①フォームまたはお電話にてご予約
②モバイルをご利用の場合はzoomアプリをインストール(PCの場合はインストール不要)
③弊社から【Zoom】のご使用方法とご参加に必要なURLをお送りします
④当日お時間になりましたらURLをクリックしていただきパスワードを入力いただくだけ!
◯参加費用
完全無料
皆様とお会いできることを楽しみにしております!
是非、この機会にご参加くださいませ!
住所※ご自宅から参加出来ます