東京・神奈川・埼玉地区限定
地域最大級のリフォーム専門店

EVENT

イベント情報

イベント情報一覧に戻る
内覧会多摩店終了しました

マンションリフォーム完成現場見学会

完成現場見学会20240413

中古物件のご購入や持ち家のリフォームをお考えの皆様に向けたリフォーム完成現場見学会を開催致します!

 

【このような方へおすすめ】

・マンションリフォームの参考にしたい方
・エアコンがお部屋になくお困りの方
・収納計画やLDK改装の参考にしたい方
・配管の状態について関心がある方

 

【今回の物件】

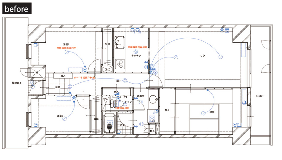
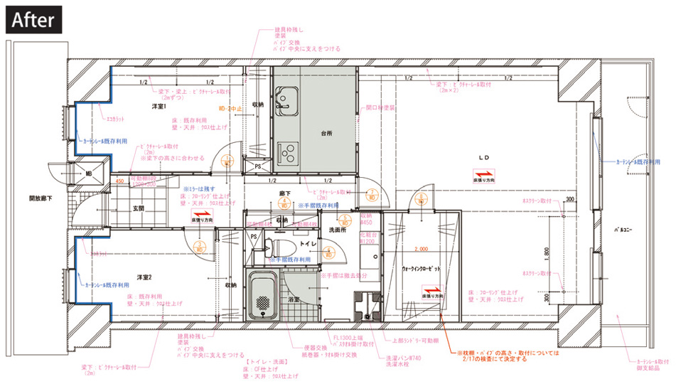
マンション・築40年(リフォーム当時)・79㎡・4LDK

 

リフォームのポイント

大幅な間取り変更をせず、快適な空間を実現した事例になります。
リビングの隣にあった和室を洋室にし、広いLDKを実現しただけでなくウォークインクローゼットも新設したところも注目ポイントの一つです。
また、給水給湯管も一新しただけでなく、個室2部屋にエアコンも新設致しました。

 

間取り図before
間取り図after
配管写真

 

■会場:多摩市関戸1-1-5 ザ・スクエアC棟

※お部屋番号はご予約受付時にお伝えいたします

 

◆完全予約制◆ 

各回人数制限を設けております。

ご予約はフリーダイヤル0120-89-1802、または本ページ上部の「この日程で申し込む」より、お早めにどうぞ。

 

◯参加費用
完全無料

 

皆様とお会いできることを楽しみにしております!

是非、この機会にご参加くださいませ!

MAP開催場所

住所多摩市関戸1-1-5 ザスクエア聖蹟桜ケ丘

イベント情報一覧に戻る